Katowice Music Academy

008 diagramme 01 web
001 web

To strengthen the awareness of the historical continuity and seriousness of the Academy...

Year

2019

Venue

Katowice

State

Competition

Category

Culture

Size

7.565 m²

Year

Venue

State

Category

Size

2019

Katowice

Competition

Culture

7.565 m²

Year

2019

Venue

Katowice

State

Competition

Category

Culture

Size

7.565 m²

Urban and architectural concept

The undoubtfully valuable historical architecture of the main building drove us towards the idea of sculptural opening of the main façade towards existing Campus. It was crucial to empower the idea of the Campus as an ensemble, having in mind not only the main building, but also other valuable pieces on site. The north side of the new building was intentionally dedicated to the service areas and horizontal communication, at the same time serving as an acoustic buffer.

002 web

The project area is entangled in between the main rail connection and Wojewódzka Street - vis a vis main building of the Music Academy in Katowice. From the very beginning it was clear to us that we are facing two challenges, defining relation with the Campus and accosting protection of the newly developed project.

000 Lageplan web

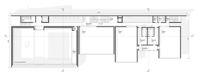
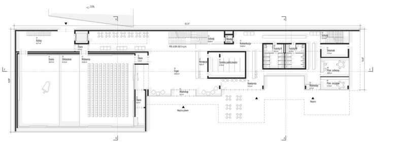
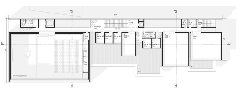
All of the functional areas of the academy and the main music hall are oriented to the south and designed maintain optimal proportions for its best performance. The functional composition of the rooms is a result of a careful study of architectural rhythms, gradually moving from a large-scale audio-visual hall into a series of small-scale study rooms.

008 diagramme 02 web

The vibrating - ‘musical’ south facade of the designed building engages with the dialogue with the historical architecture of the main and architecturally instrumental edifice with its articulated windows, gables, porticos and rich architectural details. The proposes surfaces of glazing intend to be open towards the architecture of the main Campus building (defining a sense of the identity within the university) and as well transparently communicate with the outside - with the city at large - giving it a glimpse into the fascinating world of the music academy (dance, music), and emphasize the existing beauty of neo-Gothic style of the main piece through multiple reflections.

009 Ansicht web
010 Ansicht web

The northern facade serves as an acoustic shield for the newly designed building - a closed and tight wall is perforated only with a rhythmic series of small openings concentrated in the area of the main staircase which are framing panoramic views towards the city and the Church of the Immaculate Conception of the Blessed Virgin Mary.

003 web

The newly defined outdoor space between the newly designed building and the existing one becomes the heart of the Campus - a hybrid of entrance plaza and park with a high utility values (acoustic protection, shade, greenery, filtered sunlight and natural shade thanks to the newly planted and exiting trees).

002 Schnitt web

The hybrid plaza/park is intended as a background for the university’s artistic events, as a place for social interaction of the students and guests, but also a place of rest and attractive public space. The design of that area is complemented by semi-public spaces of terraces of three floors of the newly designed academy building.

001 Schnitt web

Due to the key acoustic issues related to the fact of being located in a relatively noise-polluted environment (from the railway side), we propose a consistent layout with a passageway and auxiliary rooms on the north and teaching rooms on the south side. The ground floor of the building has a semi-public character with a foyer, an audio-visual hall, changing rooms and the largest dance rooms.

004 Schnitt web

The main audio-visual hall has been designed as a multifunctional space.

005 web

The main audio-visual hall has been designed as a multifunctional space that can perform key functions for the university, from an intimate concert (as a supplement to a large concert hall in the main building) to an auditorium, conference room for dance / sound theatre, etc. The form of the hall - rectangular, is modelled following the acoustic layout of the Vienna Musikverein concert hall. Which is known to be suitable for a variable arrangement, from the classic frontal to the central one, more in keeping with experimental musical and theatrical forms with the participation of the audience.

We wanted to combine the modern form of the concert hall with natural materials to create a possibly friendly and stylistically capacious background for musical events. The dominant material of the Concert Hall will be perfect for acoustics, elegant and timeless oak wood in a natural colour. Thanks to the use of movable wooden panels and a double facade, it is possible to both close the hall (e.g., during concerts) and open it to the outside, and use natural lighting and visual contact inside - outside (e.g. during dance performances).

003 Schema 01
003 Schema 02
003 Schema 03
005 EG web
006 OG1 web
007 OG2 web

Architecture

Pichler & Traupmann Architekten

Design team

Bartosz Lewandowski (team leader)
Nikola Beim
Anna Gulinska
Giuseppe Malfona
Piotr Pindor

Client

Karol-Szymanowski-Musikakademie Katowice

Hard facts

Start of planning: 2019
Usable floor area: 5.598,79 m²
Gross floor area: 7.565 m²
Location: Katowice (Silesia, Poland)
Use: New building and extension of Katowice Music Academy
Scope: EU-wide competition

Renderings

CHRONIC PICTURES Vienna