New Catholic parisch church for Bruckneudorf

250633 Schaubild 1 web
DSC02591 web

Churches become an instrument for mediation, both through their external impact and as an element in the urban mesh, but also through their internal qualities.

Year

2022

Venue

Bruckneudorf

State

Competition

Category

Culture

Size

445,4 m²

Year

Venue

State

Category

Size

2022

Bruckneudorf

Competition

Culture

445,4 m²

Year

2022

Venue

Bruckneudorf

State

Competition

Category

Culture

Size

445,4 m²

“Church” as mediator

Traditionally churches are designed as special places in the context of human existence on earth. Whether it be their significant topographical situations or their urban settings, they are always positioned as mediators, as a connection between above and below, or as a focus and a pivot in their surroundings.
The concept for the new Bruckneudorf church was developed with these aspects in mind.

250633 Schaubild 2 web

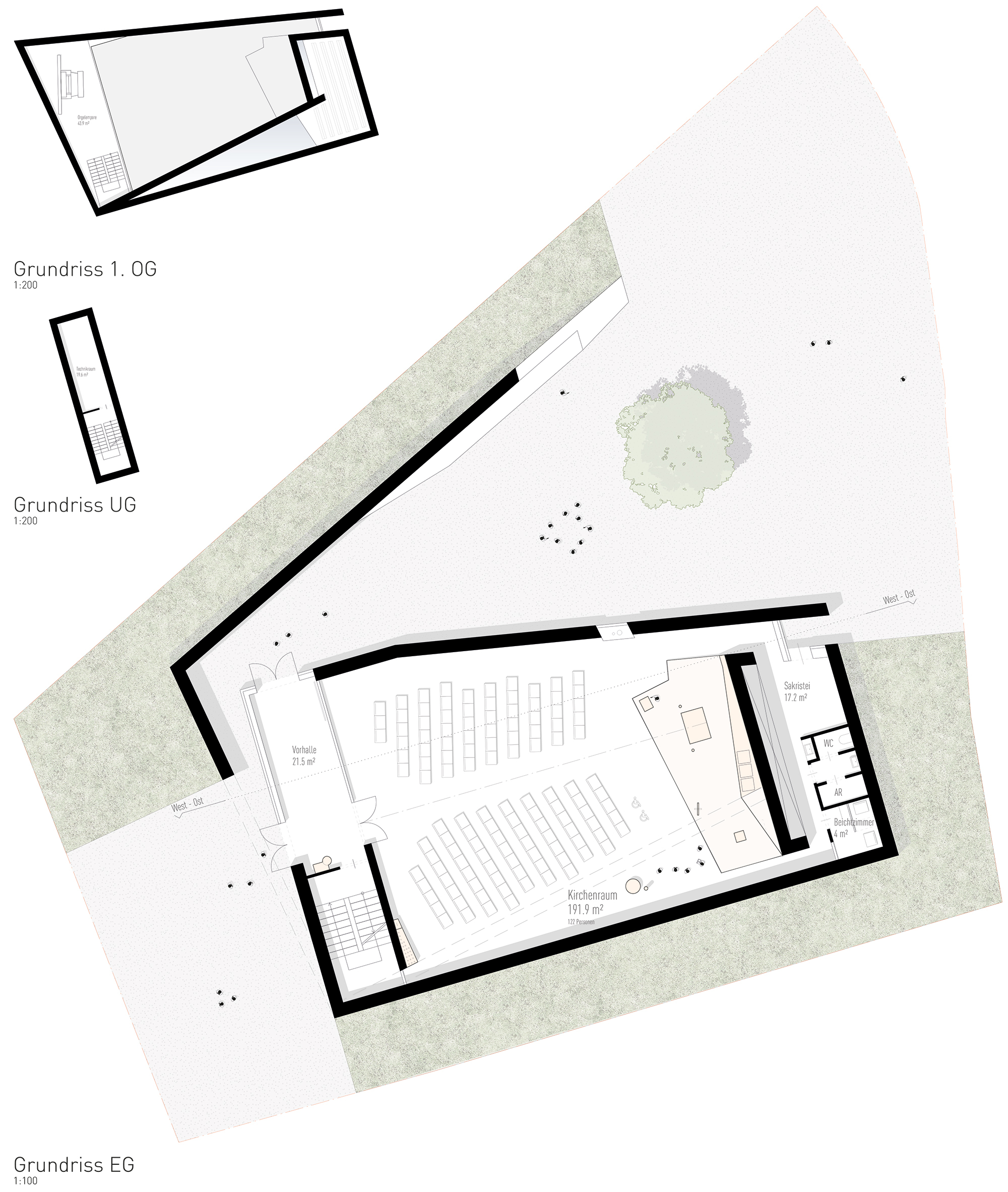
The church itself is moved to the south-western corner of the site where it forms a kind of edge to the housing block opposite with garage entrance, but also to the approach road. The remaining part of the building site is structured into a funnel-shaped forecourt, which opens to the schoolyard and to the approach to the carpark, and into a second front area to the west that is an extension of the green space between the silos and the housing. Both front areas – which form so to speak an “L” around the church – are connected with each other so that it is possible to walk across them. The path deliberately leads across the joint formed by

Plan06 web

the church entrance whether as the outdoor passageway or also, quite simply, across the draught lobby of the church, which always stands open: church as the pivot and focus of an urban system. Through this dual design of the square the approach to the church space from the different directions is made possible with a clear and natural immediacy. A swivelled wall, which is generated from the walls surrounding the church space, guides and assists the legibility of the entire complex and gives the square a certain interior quality as a protected area.

Plan03
Ansicht ost
Ansicht nord
Ansicht west
Ansicht sued

The church building itself is characterized by a "subtle monumentality". How is this contradictio in adiecto to be understood? We traditionally understand church as a community of the faithful gathered together but also as a symbol of the encounter between God and humankind, which over time has searched for adequate forms of expression. So, church as a building typology has always been the epitome of a clearly articulated self-understanding that has manifested itself morphologically. We wish to continue this aim and therefore have decided on a

sculptural built form, which, seen semantically, represents a unique feature in the given surroundings. The monolithic white walls develop into a figure that strives upwards. The bell tower called for in the brief is integrated in this overall figure, as both of the “pointed walls” that are a distance apart produce a vertical spatial slit, which is intended to position the ringing of the bells. At the same time here, at this deliberately east-facing opening, light makes its way into the church interior.

250633 Schaubild 1 web

Essentially, great attention is devoted to the use of light as a sacred symbolic element.

Swivelling the wall surfaces towards each other produces a further ambient entry of light into the church space. The sloping light also meets the wall behind the altar. Swivelling the walls generates a kind of “side aisle” which is envisaged as a top-lit zone for the baptismal font and the tabernacle. The altar space itself is emphasised and illuminated from the topmost point of the upward striving roof figure, whereby the zenith light transforms the upper section of the wall behind the altar into a white shimmering abstract surface. The Baroque metaphor of the dissolution of the building elements behind the altar “towards heaven“ as a transcendental metamorphosis is here implemented in a contemporary fashion.

250633 Schaubild 3 web

Access to the church space

Access to the church space is from the west, from one of the two parts of the square. On the longitudinal axis with a direct view of the altar block that is placed on this axis you walk between the rows of seats. But immediately after the entrance you can also turn off to the left or the right and can enter the rows of seats from the sides. For reasons of flexibility the seating consciously consists of chairs which however can in principle easily be placed facing each other to create a certain internal quality. The additional advantage is that the area immediately in front of the altar is as a result widened, allowing it to be used for special activities. In general, we suggest keeping a certain distance between the rows of seating and the altar plinth to create space for special occasions (weddings, First Holy Communion etc.). The area for people with restricted mobility is also located here.

DSC02566
DSC02590 web
DSC02586 web

A generously sized glazed draught lobby is inserted to produce a threshold area between the interior of the church and the space outside. Like the entire building, this is a mediating space between two spheres. The altar area itself follows the established liturgical guidelines regarding dimensions and layout.

GR web

In detail however the precise positioning and orientation were chosen to ensure an optimal view of the individual elements, ambo, altar and sessio. Conversely, the communicative turning of celebrant and readers towards the congregation is also made possible. This aspect was examined in spatial simulations, which led ultimately to a slightly swivelled position of both ambo and sessio. The sculptural shape of the back wall to the altar space with the unfolded

sessio plinth and the recess to the side of the sessio bench is a subtle reference to an apsis with the early Christian presbyter’s bench. The
nuanced plasticity also clearly creates a rear wall for the tabernacle and thus – although it belongs to the altar area – gives it a certain
autonomy, as can be clearly seen in the rendering of the interior. The altar block itself strictly follows the axiality of the perceptible main
space, axially symmetrically in position and orientation and thus becomes the pivot of the overall spatial composition.

The artificial lighting follows the logic of the entry of daylight but is augmented with direct lights inserted in the walls that shine directly downwards on the rows of seats. It its overall tectonic constellation the new church in Bruckneudorf is intended as a place of crystallisation for encounter, a pivot and focus for togetherness in various forms but also aims to refer to greater contexts – whether of an urban design or a spiritual nature. The space is to be experienced as one that is bathed in light from above, which dissolves into parts, like the hovering southern long wall, in a field of tension of the earthed below and the spiritual above.

Plan04

The church as mediator between everyday life and transcendence.

Architecture

Pichler & Traupmann Architects

Design Team

Bartosz Lewandowski (team leader)
Anna Salakhova-Chakhal

Client

Diözese Eisenstadt, OSG – Oberwarter Siedlungsgenossenschaft, Großgemeinde Bruckneudorf - Kaisersteinbruch

Hard Facts

Start of planning: 2022
Usable floor area: 346,2 m²
Gross floor area: 445,4 m²
Location: Bruckneudorf
Function: Parish Church
Scope: Invited competition

Renderings

pxt - Anna Salakhova-Chakhal

Model

Harald Schmidt, Vienna

Award

2nd Place