Trlllple Building Site 4

Pxt trlllple bauplatz 4 Fußgängerperspektive Schnirchgasse web
Pxt trlllple bauplatz 4 Piktogramme 02

How should one think of a building, which in technical and legal terms is a high-rise but ought not and does not wish to be one? A building on which the overwhelming majority of its neighbours will look down. Our answer is a system that is open towards the top, a basket or a vase, in short, a building that does not have the typological characteristics of a classic high-rise building in either the plinth zone or roof area.

Year

2021

Venue

Vienna

State

Competition

Category

Mixed

Size

14.955 m²

Year

Venue

State

Category

Size

2021

Vienna

Competition

Mixed

14.955 m²

Year

2021

Venue

Vienna

State

Competition

Category

Mixed

Size

14.955 m²

Pxt trlllple bauplatz 4 Vogelperspektive web

The Vase Building 2.0

On the roof we do not find a tower cap or a structure to house building services but an elevated garden, a raised park with trees that offer all those around a lovely view. In the plinth, however, the building becomes slender in order to generate as small a footprint as possible, so that the maximum amount of space, light and air is provided for the second roof garden at plinth level and for the surroundings.

Pxt trlllple bauplatz 4 Grundrisse UG2 UG1 EG OG1 01 web
Pxt trlllple bauplatz 4 Grundrisse OG2 OG4 OG8 03 web
Pxt trlllple bauplatz 4 Grundrisse OG2 OG4 OG8 01 web

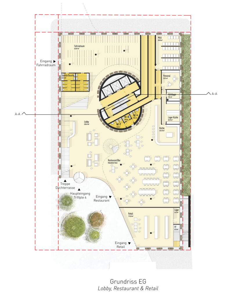
The outdoor space forms a design and conceptual entity with the characteristic building volume. The circle is used as a signature form and as a space-shaping element.

The net structure is symmetrical and regular. Each bar and each node are therefore generally identical. Furthermore, the bars have now been arranged tangentially rather than radially in plan. This leads to greater visibility of the timber structure and, above all, to better utilization of space. The vertical loads of the floor beams are simply transferred to a plug-in system via contact pressure. In the area of the taper of the vase, the deflection forces occurring there are transferred via threaded rods and glued-in pipe connectors.

Pxt trlllple bauplatz 4 Ansicht

This connection is characterized by the low use of steel and simultaneous higher exploitation of the performance of the wood. Furthermore, it allows for easy dismantling. The floor structure still consists of prefabricated segments, but the plywood floor slab has been replaced by a high-strength concrete slab only 14 cm thick. This also allows the elimination of the stiffening ribs as well as a much better efficiency of the component activation.

Pxt trlllple bauplatz 4 Schnitt web
Pxt trlllple bauplatz 4 Fußgängerperspektive Brücke web

The interface to the city is developed on the ground floor zone as an urban, paved square. Several insular green areas in the ductus of the circle articulate the space and are planted with trees, they function as a shaded entrance area with seating elements. In analogy to the neighboring high-rise projects, this main access is additionally made visible by a change of sidewalk set off from the surrounding sidewalk. The design principle is inverted for the building greening at the base and on the roof. Here, circles define common areas and are framed by lush intensive greenery.

Pxt trlllple bauplatz 4 Lageplan web

As a special quality of the project, a roof park is planned on the top floor, as a highly visible sign. Via terracing, one reaches, again circular, passageways and widenings, which are framed by tree plantings and green areas. At certain points, the paths step up to the edge of the building and allow views over the nearby Prater and towards the south. Bench seating provides space for a variety of user group sizes and creates space for smaller events. The towering building cubature acts here as an effective windbreak and is the architectural frame of the park.

Dachdraufsicht

By using wood for both vertical and horizontal beams and for the wooden frames of the windows, a significant part of the CO2 released by cement production can be recaptured.

Following a comprehensive evaluation, we remained with our decision to propose a double layer facade. The external skin provides protection against the weather, the internal layer protects against heat. The low thermal conductivity of wood allows this material to be ideally positioned between the two planes in a space-saving way. In addition, the only penetrations are at certain points of the beams. Thanks to the compact form but also due to the double facade heat losses can be kept to an absolute minimum: at the same time there are large areas of glazing that provide light for the compact floorplans in an ideal way.

Triiiple Fassadenmodell web
DSC02307 bearbeitet web
DSC02314 bearbeitet web
DSC02300 bearbeitet web

Architecture

Pichler & Traupmann Architects

Designteam

Bartosz Lewandowski (team leader)
Anna Gulinska
Florian Huber
Elisa Mazagg
Piotr Pindor
Florian Zeif

Client

Projektgesellschaft Trlllple BP vier GmbH & CO OG

Structural design

RWT Plus ZT GmbH, Vienna

Energy concept

Arch. DI Bernhard Sommer, Vienna

Structural fire protection

Norbert Rabl ZT GmbH, Graz

Landscape planning

Lindle+Bukor – atelier für landschaft, Vienna

Hard facts

Start of planning: 2021
Usable Floor area: a: 12.744 m² | u: 2.928 m²
Gross floor area: o: 14.955 m² | u: 3.161 m²
Use: Office building
Scope: Single-stage, invited competition

Renderings

Felix Lohrmann Illustration, Vienna

Model

Harald Schmidt, Vienna

Award

2nd Place