Long Distance Bus Terminal

008 011212 Flaechenpolygone web
011212 2 Perspektive Aussen web

The office and hotel tower of the terminal is seen as a new element in the “string of pearls” formed by the high-rise buildings on the banks of the Danube and its position on Handelskai is therefore entirely logical.

Year

2020

Venue

Vienna

State

Competition

Category

Mixed

Size

60.624 m²

Year

Venue

State

Category

Size

2020

Vienna

Competition

Mixed

60.624 m²

Year

2020

Venue

Vienna

State

Competition

Category

Mixed

Size

60.624 m²

011212 2 Diagramm 7 web

In dialogue with the calm flow of the Danube a horizontally articulated and equally calm facade is turned towards the riverbank and is axially symmetrical to it. This facade is clearly bent in plan so that it appears as slender as possible, whether seen from up- or downstream. The position chosen allows a new plaza to be developed between the tower and the Stadioncenter (shopping centre). For the major urban functions that are to be located there and for both the existing housing and the new housing that will replace the cycling stadium it will be an attractive open space where it is pleasant to spend time.

011212 2 Lageplan web

The existing difference in level between Handelskai and Engerthstraße is exploited, allowing the bus transportation complex to be slid underneath the terminal building. The area of the bus platforms and the plaza lying above them have a maximum slope of four per cent and are therefore entirely barrier-free. The terminal hall is, of course, horizontal throughout. The café and the approaches to the lobbies and to the terminal administration can be reached barrier-free by means of lifts.

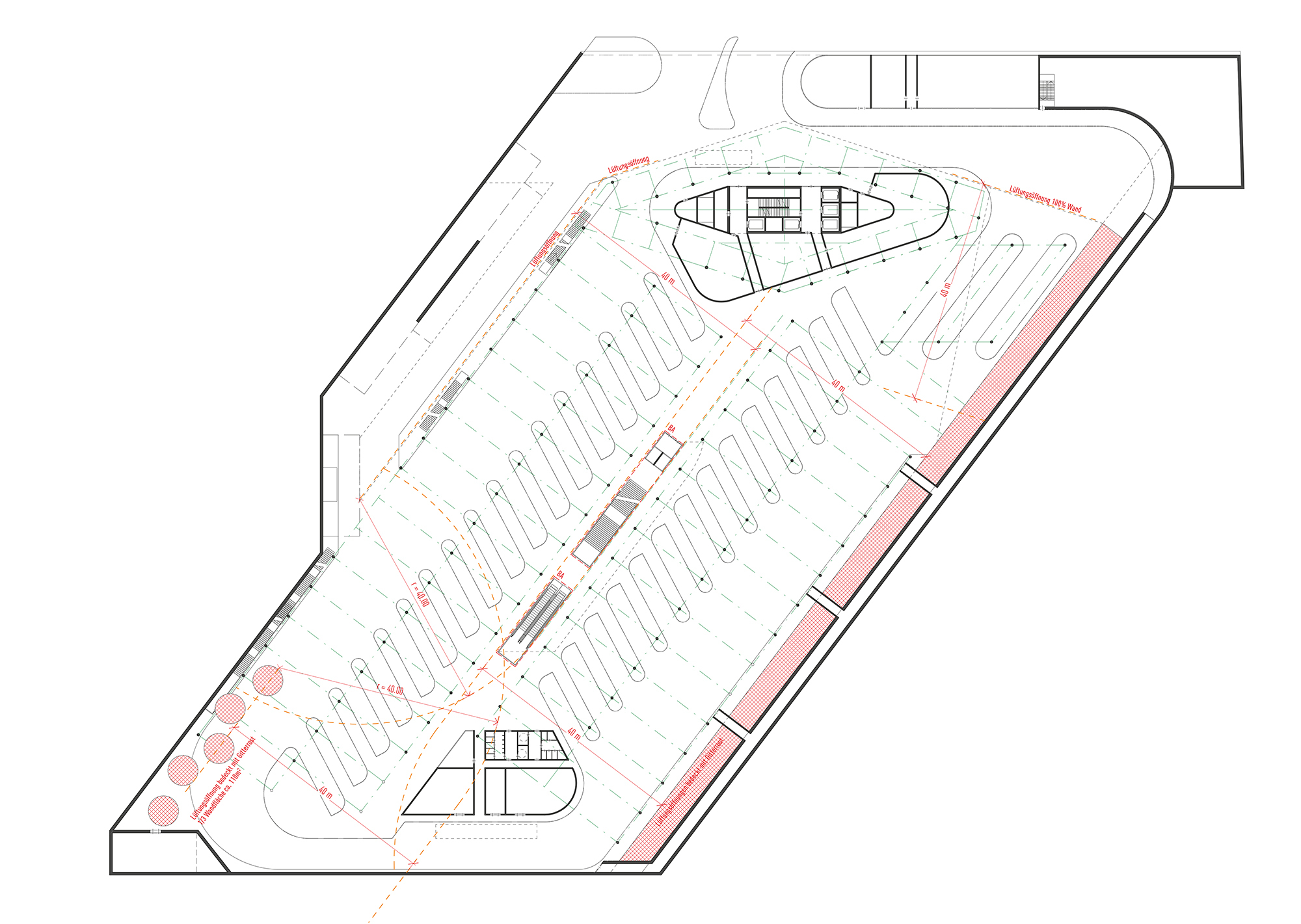
011212 2 EG web
011212 2 Diagramm 8 web
011212 2 Diagramm 9 web
011212 2 Diagramm 1 web neu

In the northeast, on both sides of the complex, the walls enclosing the bus transportation area are mostly open, while in the southwest grilles laid level with the surface of the plaza enable the bus platforms to be well ventilated naturally, which allows the requisite fire protection facilities to be kept to a minimum. These measures do not affect the integrity or usability of the square.

011212 2 Perspektive Aussen web

The overall figure developed for the long-distance bus terminal and its tower reflects the diverse situations and requirements of the task set, and indeed emerged from them. It authentically represents these same demands in the image of the city and conveys them to the citizens.

The plaza is divided into two zones by the canopy roof described above: firstly, the main part of the square, which extends between the terminal building and the Stadioncenter, integrates Engerthstraße and has an impact to the northwest and the southeast; secondly a smaller, protected courtyard-like area, which is defined on the left-hand side by the terminal building described above and on the right by a flanking buildings with retail and other functions. At the end of this courtyard, prominently positioned at the foot of the tower, is the main entrance to the lobbies for all those who do not wish to take the route through the terminal hall. To create an agreeable urban climate in summer,

the facades of the flanking building and of the Stadioncenter will be covered with greenery.The roofs of the building elements, of the terminal hall and the flanking building as well as the facades of the tower that are turned towards the city centre are combined in a continuous figure in order, on the one hand, to respond to the dynamics of arriving and departing but also to elegantly integrate additional functions such as co-working spaces or the seminar and events centre on the upper floors that step back in the direction of the tower. The roofs of these two “arms” meet exactly at the bend in the tower’s diamond-shaped floor plan.

The continuous unification of roof and facade is reflected in the details: the roofs begin to separate slowly into strips, in order, through bands of high-level glazing, to provide light for the functions below. With increasing height these strips transform into louvers that articulate and shade the glass facade of the high-rise. The game of strip-shaped articulation is continued at the larger scale, too: a glass surface that develops out of the left-hand of the two internal courtyards incised in the roof surfaces to provide light also articulates the elevation as a whole. In the top three storeys of the tower, it is crowned by an outdoor space resembling a loggia that is open at the top.

The tower is placed with its extremely slender narrow sides in the principal wind direction in Vienna, parallel to the Danube. Thanks to its diamond-shaped floor plan with, in part, rounded building edges it is ideally positioned in terms of wind comfort. Any down winds that may develop are kept away from the new plaza by means of the building volume in front.

011212 2 Schnitt 1 web

As well as being influenced by the urban design considerations outlined above, the exact position of the tower on the site was chosen to to avoid building above the bus platforms and to allow its core to be fitted harmoniously into the layout of the transportation complex, at a place where space is still available. Protected by a wide-spanning canopy roof that is continued to the Kiss-and-Ride zone on Marathonweg, the main entrance to the terminal is turned towards Engerthstraße and the exits from the Stadioncenter arcade.

011212 2 Schnitt 2 web

Within this newly created space the terminal itself can be developed generously and logically in a series of spatial and functional sequences.

011212 2 Diagramm 3 web
011212 2 Diagramm 4 web
011212 2 Diagramm 5 web
011212 2 Perspektive Innen web

As it must deal with substantial live and building loads the bus platform hall has a reinforced concrete ceiling. The soffit of this ceiling is modelled to reflect the path of forces and has an articulating rhythm. This relieves the concrete of its weightiness and allows a certain hovering, “tent-like character” to develop. In contrast, the terminal hall with a span of more than thirty metres will be covered by a lightweight steel structure. Here it was important to us to make the structure of strips that develops out of the vertical articulation of the tower facades the constituent

element of the terminal roof to give the impression that these roof strips hover entirely freely, without columns, in the hall’s long direction. The café is located at the end of the hall, in a slightly elevated position, from where it has a good overview, and it is followed by the approach to the hotel lobby and to the tower lobby. This position allows the café to serve both the terminal hall and the open space of the plaza, while all other functions of the ensemble can be easily reached from the terminal hall.

011212 2 OG 1 web
011212 2 OG 2 web
011212 2 OG 3 web

Protected by a wide-spanning canopy roof that is continued to the Kiss-and-Ride zone on Marathonweg, the main entrance to the terminal is turned towards Engerthstraße and the exits from the Stadioncenter arcade. From there you enter a generously dimensioned hall in which the various service functions are strung out on the left-hand side, while the ticket and information desk is placed centrally and, on the right-hand side, three descents to the bus platform are provided, a stairs, an escalator and two lifts, placed exactly on the platform axis.

Architecture

Pichler & Traupmann Architekten

Design team

Bartosz Lewandowski (team leader)
Anna Chakhal-Salakhova
David Guisado
Anna Gulinska
Patrik Drechsler
Radde Jumi
Jakub Kaczmarek
Merve Sahin
Andreas Schermann

Client

WSE Wiener Standortentwicklung GmbH

Structural design

RWT Plus ZT GmbH, Vienna

MEP, energy efficiency, sustainability

Woschitz Engineering ZT GmbH, Vienna

Structural fire protection

Norbert Rabl ZT GmbH, Graz

Traffic planning

Werner Consult ZiviltechnikergmbH, Vienna

Wind comfort

ZAMG Environment Department, Vienna

Landscape planning

Carla Lo Landschaftsarchitektur, Vienna

Hard facts

Start of planning: 2020
Gross floor area: 60.624 m²
Location: Vienna 2nd district
Use: Internationaler Fernbus-Terminal, Hochhaus für Hotel- und Büros, Stadion-Center
Scope: EU-wide open, double-stage competition

Renderings

Phase 1: CHRONIC PICTURES, Vienna
Phase 2: Patricia Bagienski, Vienna

Model

Harald Schmidt, Vienna

Award

Long distance bus terminal: 3rd Prize
Stadion-Center: 2nd Prize