Spaun House

43 Spaun04 web

The view stretches out into the vastness of the Wachau region, Göttweig Abbey glows in the morning sun—a house on the hillside.

Year

2001

Venue

Krems

State

Completed

Category

Private

Size

214 m²

Year

Venue

State

Category

Size

2001

Krems

Completed

Private

214 m²

Year

2001

Venue

Krems

State

Completed

Category

Private

Size

214 m²

43 Spaun01 web

As much as the house shown here gives the impression of a detached house, it is actually a renovation project. When we began planning, the site presented itself as an extremely steep south-facing wine terrace landscape, built up with a disparate collection of dilapidated functional buildings, some of which were used for residential purposes. Despite the sensitive designation of the property as “green space – agriculture with buildings worth preserving”

43 Spaun02 web

a forward-looking concept that is exemplary for such locations was developed in collaboration with the committed client, the Krems City Planning Office, and the Lower Austria Regional Planning Authority. This concept included both the preservation and demolition of existing structures and the integration of a contemporary residential structure. The existing natural stone walls of the wine terraces, the natural stone rear wall of the old press house, and the wine cellar dug deep into the vineyard were identified as worthy of preservation.

061017 04 web
Haus Spaun Plaene lageplan

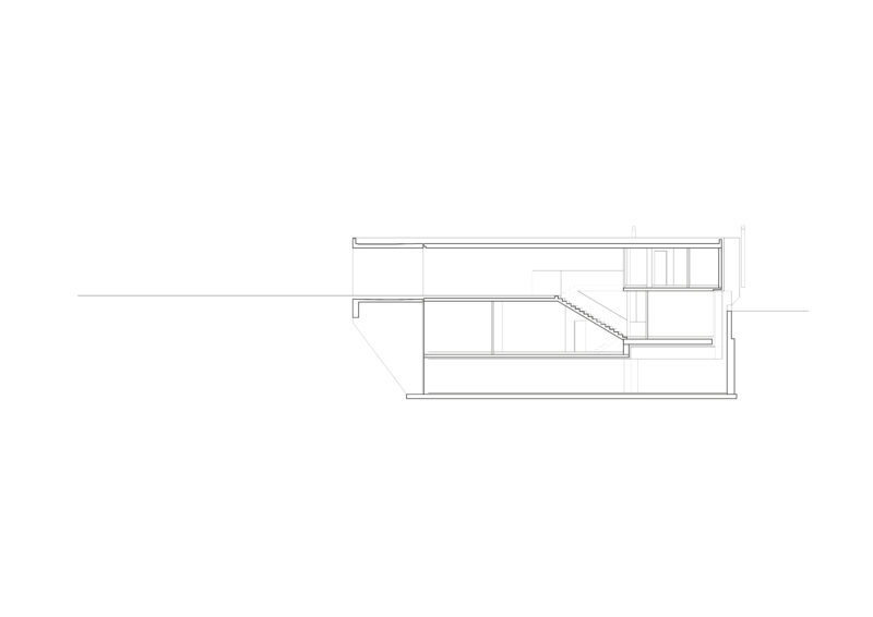
The location and geometry of the natural stone walls and the wine cellar were the starting points for the design process.

The challenges involved in designing the house were extreme: a steep slope, a column-free driveway, and a building geometry that, due to the existing walls' inability to bear loads and the open floor plans, only allowed load transfer at a few points.

Haus Spaun Plaene schnitt A A
Haus Spaun Plaene schnitt C C
Haus Spaun Plaene ostansicht
43 Spaun03 web

Architecture

Pichler & Traupmann Architects

Project team

Isabella Reisigl-Pichler, Christian Dominkovits, Barbara Aull

Structural planning

Projektierungsbüro für Industrie-,Hoch-und Tiefbauten, Vienna

Site supervision

Ing.Peter Langer, Mautern

Client

Dr. Heide-Gritt Hochmiller-Spaun, DI Sebastian Spaun

Hard facts

Start of planning: 2001
Start of construction: 2003
Completion: 2004
Site area: 2.191 m²
Built area: 201 m²
Usable floor area: 214 m²
Location: Krems/Stein
Use: private residence
Scope: Designer with responsibility for all design services
 

Photos

Rupert Steiner, Vienna