Krakow Music Center

WB KCM Krakau luftbild web
WB KCM Krakau aussenzonen

The Krakow Music Center is being built in an extremely interesting place...

Year

2020

Venue

Krakau

State

Competition

Category

Culture

Size

12.477 m²

Year

Venue

State

Category

Size

2020

Krakau

Competition

Culture

12.477 m²

Year

2020

Venue

Krakau

State

Competition

Category

Culture

Size

12.477 m²

... with a metropolitan character on the one hand - across from Błonia, the new museum district under construction, and on the other hand - in a park area with old trees and lots of green spaces. Therefore, we wanted the building to be a gentle landscape gesture, despite its size and importance - a kind of "land art" and the green roof of the building a continuation of the "park" in a symbolic, functional and natural sense.

WB KCM Krakau lageplan stadt web

A historical character of the place with a fortress bunker

The nearby, apparently unattractive concrete shelters, together with the surrounding trees, has the potential to become an important cultural landscape element that gives the events on the square a unique character. The slightly curved west wall of the building creates space for the amphitheater descending to the orchestra hall, thus further strengthening the connection between the building and the landscape. The clear, straight line of the east wall fits into the street context and opens the building to Błonia Park in Krakow. In contrast to the naturally green roof, the glazed north facade of the building is a clear architectural intervention - it curves slightly to the south and thus creates an inviting entrance area, visible but also partially shielded from the hustle and bustle of the street.

The location of the music center building along the southern boundary of the property forms four different types of landscape: the entrance area, the "park" and the delivery zone with the artist's entrance. The fourth type of landscape is the Błonia meadow in Krakow. The entrance square is to become the outdoor lounge of the music center and open towards it to the public functions of the building, entrance, gastronomy, shop and auditorium. The square is easily

WB KCM Krakau aussenzonen

accessible from the access road and the garage under construction as well as from the public transport stops. Separated from the entrance area by a historical refuge, the “park” should have a much more natural character. The delivery area on the south side is not only a technical access area, but also a discreet area for a separate entrance for artists and VIPs.

WB KCM Krakau landschaft dach
WB KCM Krakau eingangsblick web

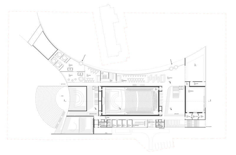
Functional arrangement

The building is divided into three main areas: In the north the visitor area with a shop, a canteen, with "Service Kids" and a kindergarten. In the southern part there is a musicians' room with a separate entrance, office cloakrooms, VIP room and a conference room. In between is the main area - the music room with the main concert hall and the rehearsal rooms.

WB KCM Krakau schrägriss
WB KCM Krakau schrägriss zonen
WB KCM Krakau saal1 web

Concert Hall

The concert hall is in the center of the building. The public foyer connects public functions on the ground floor with the main entrance to the concert hall on level -1. In the most visible northeast corner there is a meeting hall, which is connected both with the entrance square and visually with the Błonia area.

WB KCM Krakau akustik web01
WB KCM Krakau akustik web02

The rehearsal rooms are arranged so that they can be used multiple times. Two of them, the choir studio and the orchestra studio, are located on the stage level and are directly accessible to artists in the immediate vicinity of the hall. Both open to the quietest and greenest western part of the property. The glazed wall of the orchestra hall lowers and allows the opening to the amphitheater integrated into the area, creating a concert shell.

The third of the multifunctional rehearsal rooms is on the ground floor on the side of Piastowska Street and Błonia Street. Its experimental character and its opening to the city should attract the attention of passers-by and attract visitors. As far as possible from the lively Piastowska Street, in the northwest corner, there is a kindergarten with its own entrance and direct access to the green area. A well thought-out relationship between inside and outside is crucial for our concept of a music center.

All important rooms around the concert hall are arranged in the building in such a way that a logical and functional arrangement is guaranteed, but functional and visual connections to the environment are also used. The public foyer is accessible from the spacious entrance square and opens up in front of the entrance with a panoramic view of the Salwator district and Kosciuszko Hill.

WB KCM Krakau erdgeschoss web
WB KCM Krakau kellergeschoss web

The auditorium was placed in such a way that on the one hand it is functional and connected to the square, which enables the organization of outdoor events, and on the other hand is visually open to the Kraków Blon and the view of the Wawel Castle. The black box studio opens in the same direction. These two functions can also be a point of attraction for KCM (Krakow Music Center) due to their visibility and thus their presence in the urban space.

WB KCM Krakau saal2 web

Architecture

Pichler & Traupmann Architekten

Design team

Bartosz Lewandowski (team leader)
Leonie Eitzenberger
Anna Gulinska

Client

Agencja Rozwoju Miasta Krakowa sp. z o.o. (Municipal Development Agency)

Acoustics

Müller BBM GmbH Planegg

Hard facts

Start of planning: 2020
Usable floor area: 6.200 m²
Gross floor area: 12.477 m²
Function: Music center
Scope: EU-wide competition

Renderings

Patricia Bagienski, Vienna