Heustadelgasse Housing Development

090609 01 web
090609 44 web

"Neue Siedlerbewegung"
Between garden city and allotment garden

Year

2006

Venue

Vienna

State

Completed

Category

Living

Size

14.126 m²

Year

Venue

State

Category

Size

2006

Vienna

Completed

Living

14.126 m²

Year

2006

Venue

Vienna

State

Completed

Category

Living

Size

14.126 m²

In conceptual terms the "Neue Siedlerbewegung" (new settlement movement) is positioned somewhere between a garden city and an allotment garden, between a row house estate and an estate of houses on garden plots. The planned organization of the row house is contrasted with the individuality and density of the allotment garden house. The new settlement movement reconstitutes itself within this field of tension.

Typology: point symmetry, suitable for additive use and for scaling up or down in size.

The typology proposed for this project is based on a prototype which, thanks to its qualities, can produce a wide variety of house types that is certainly not completely exhausted here and indicates possibilities that go far beyond this project. The new estate house is built up consistently on the basis of point symmetry.

090609 04
090609 31 web

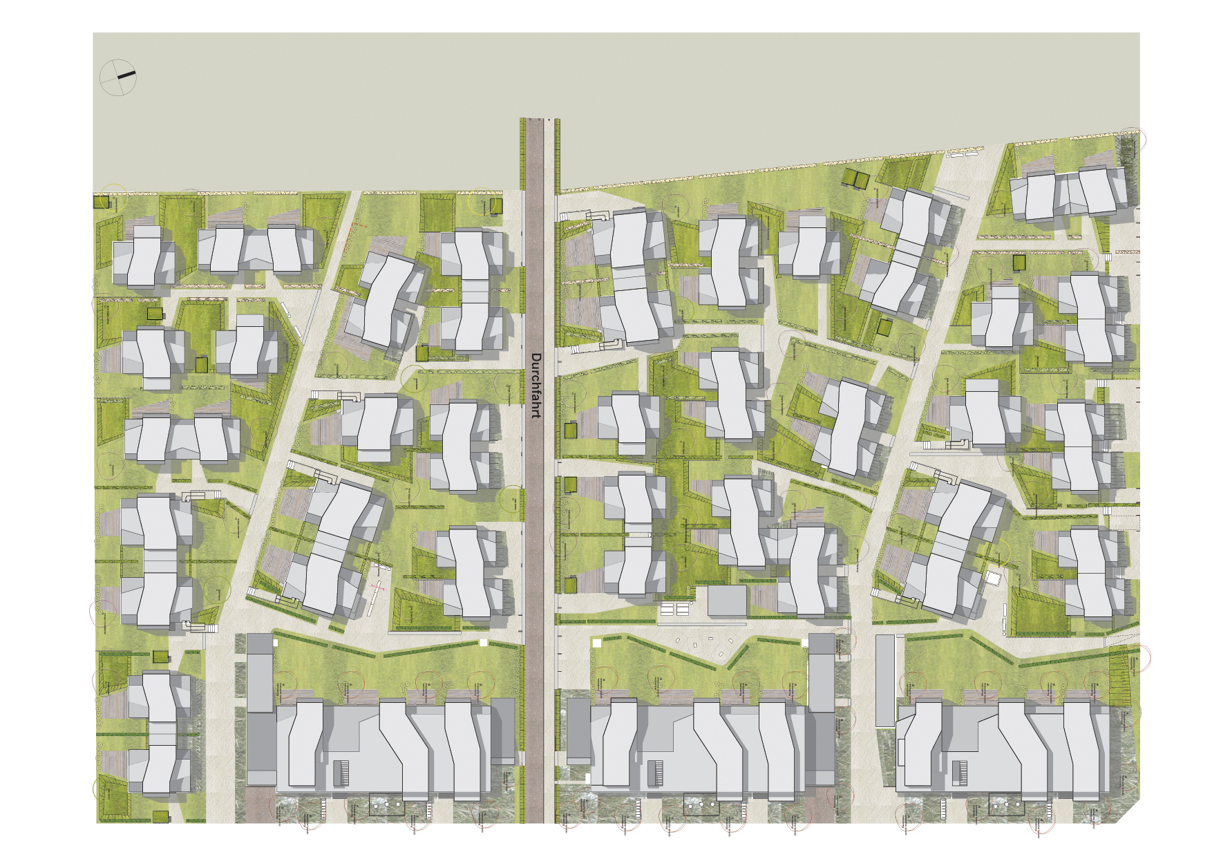
A network of public and semi-public thoroughfares extends between private areas with widening to squares, playgrounds, groups of trees and meadows.

090609 15 rgb

The result combines diversity and simplicity in the form of the design of a new estate that, while it apparently uses only one house type is nevertheless constantly new and different. The houses can take the form of a free-standing single house, paired houses, a twin (semi-detached) house, a house containing two dwelling units, or a row house and, where different zoning laws apply, they can be used in the form of high density, low rise development.

090609 43 web

Just as the houses can be connected differently, every individual house can also be offered in a number of different versions. The multiple possibilities in terms of coupling as well as individual design result in a highly diverse and flexible range of options.

090609 11

The notion of settlement, to be realized within the framework of social housing, is developed within a field of tension between the curb of the street in the East and the landscape in the West, as well as between the privacy of the garden plot and the openness of the common garden. To each of the houses an exactly defined area of terrace and garden is assigned to be used privately. However, a network of public and semi-public paths and places runs between those private spaces.

GRANSICHT E NEU
GRANSICHT E NEU2
090609 50 web
090609 14

A view 8 years after the first design and 5 years after completion

"People go for a walk in the housing development where they live!" You could hardly hear a nicer sentence from a resident! The finely woven network of routes that makes several loops through the developmente deliberately contrasts with sterile cul-de-sac models and the residents regard it extremely positively.

Architecture

Pichler & Traupmann Architekten ZT GmbH

Design team

Christoph Leitner
Sandy Panek

Project team

Barbara Aull (project leader)
Christoph Degendorfer
João Camarinha da Silva
Anke Freimund
Manuel Fröschl
Sandy Panek
Jürgen Schneeberger
Wolfgang Windt

General contractor

Universale Hochbau Vienna

Structural design

Woschitz Engineering ZT GmbH, Eisenstadt

Building physics

RWT PLUS ZT GmbH, Vienna

MEP

Altherm Engineering GmbH, Baden
Vasko + Partner, Vienna

Site supervision

BUWOG – Bauen und Wohnen Gesellschaft mbH

Landscape architecture

bauchplan ).( landschaftsarchitektur, Vienna

Project development

raum & kommunikation Korab KEG, Vienna

Client

AH – Gemeinnützige Siedlungsgenossenschaft Altmannsdorf u. Hetzendorf Gen.m.b.H. Vienna
BUWOG – Bauen und Wohnen GesmbH, Vienna

Hard facts

Start of planning: 2006
Start of construction: 2008
Completion: 2009
Usable floor area: 9.179 m²
Gross floor area: 14.126 m²
Location: Vienna 23rd District
Function: Residential
Scope: Designer with responsibility for all design services

Model

bauchplan ).( landschaftsarchitektur, Vienna

Photographs

Rupert Steiner, Vienna
Harald A. Jahn, Vienna

Awards

2010 ECOLA Award 2010 – Nomination
2009 best architects 10
Award

Related projects

Willi-Resetarits-Hof

Pfauengarten Development

Mühlgrundgasse