Europäisches Filmzentrum CAMERIMAGE

RENDER Außen web
PIKTO Screen Beamer

Die Rezeption des Films "geschieht" in einem flüchtigen Spannungsmoment zwischen Leinwand und Zuschauer - im Kontext des Kinos zwischen der Leinwand und dem Publikum.

Jahr

2021

Ort

Thorn, PL

Status

Wettbewerb

Kategorie

Kultur

Size

29.669 m²

Jahr

Ort

Status

Kategorie

Größe

2021

Thorn, PL

Wettbewerb

Kultur

29.669 m²

Jahr

2021

Ort

Thorn, PL

Status

Wettbewerb

Kategorie

Kultur

Size

29.669 m²

Film scheint eine einfach wahrnehmbare Kunst zu sein – tatsächlich ist sie aber äußerst komplex, sie operiert frei mit Bild, Ton, Zeit und Raum. Film weckt Emotionen, indem er die Sinne multidimensional beeinflusst und auf kulturelle Codes Bezug nimmt, diese verarbeitet, negiert und neue schafft.

PIKTO Konzeptentwicklung 01
PIKTO Konzeptentwicklung 02
PIKTO Konzeptentwicklung 03

Auf der Suche nach diesem Spannungsmoment im Projekt haben wir zwei räumliche Elemente - die Leinwand und das Auditorium - als Hauptelemente gewählt, die das Konzept des ECFC-Gebäudes prägen. Wiederholte, gewölbte „Screens“ prägen den Raum des Gebäudes, seinen Charakter und seine innere Komplexität – sie organisieren, schaffen eine räumliche Definition des Projekts. Die weichen Oberflächen verschließen die wichtigsten Orte im Gebäude – den Festsaal, Kinosäle und ein Open-Air-Kino.

Im Raum zwischen den neuen Ebenen erstreckt sich ein mehrgeschossiges Foyer. Seine fast kathedralische Form soll eine Art Tempel der Filmkunst schaffen. Tageslichtdurchflutete, weiche Geometrien mit mehreren Ebenen bieten einen besonderen Rahmen für Festival-Events. Die Multidimensionalität des Foyers ermöglicht eine vielfältige, räumliche Wahrnehmung.

Der Saal als Kathedrale

RENDER Innen web

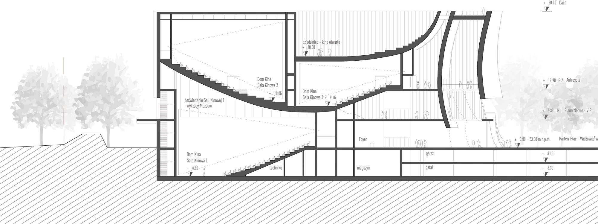
Die östliche Hauptfassade des Gebäudes ist ein Bildschirm/Leinwand – sowohl symbolisch als auch funktional. Seine Geometrie ermöglicht multimediale Projektionen - dank ihm kommuniziert das Gebäude mit dem öffentlichen Raum und verwandelt während des Festivals den Vorplatz in ein Kinobühne. Aufgrund der anspruchsvollen Lage in unmittelbarer Nähe der Altstadt in Thorn schlagen wir ein schlichtes, kompaktes, elegantes - trotz seiner Größe - bescheidenes Gebäude vor. Dank der optimalen Nutzung des Bebauungsplans und der geometrischen Lösung lässt diese schlichte Form den Blick auf die Altstadt unverändert. In der Vertikalen ist die Anlage in drei Ebenen gegliedert: Den Sockel (mit Eingängen, Museum, Messe und Begleitfunktionen), das "Podium" - Piano nobile

PIKTO Screen Beamer

(mit repräsentativem Eingang, Terrassen und Garten) und das Festivalzentrum. Den Wettbewerbsvorgaben entsprechend auf der Ostseite gelegen, soll der Hauptplatz – der neue „Toru-Salon“- die bestehenden Einrichtungen und das entstehende Festivalzentrum integrieren. Die „Piano Nobile“-Ebene ist mit dem Hauptplatz durch repräsentative Treppen verbunden, die die Geometrie der Frontfassade fortführen, und ein Amphitheater, das die Einrichtung des Kulturzentrums Jordanki funktional ergänzt. Durch diese Verbindungen erhält der öffentliche Raum eine neue Ebene, die eine freie Gestaltung und Anpassung an verschiedene Veranstaltungsszenarien im ECFC und angrenzenden Einrichtungen ermöglicht.

LAGEPLANEG 1 500 web
SKIZZENHAFTE RENDER Vogelperspektive web
SKIZZENHAFTE RENDER Ost web
SKIZZENHAFTE RENDER Süd web

Die Haupt-Festtreppe liegt leicht axial in der südöstlichen Ecke des Platzes und ermöglicht durch ihre Geometrie, das Ereignis aus vielen Blickwinkeln und Ebenen zu beobachten.An der West- und Nordseite soll das Gebäude von einem Park umgeben werden. Diese Parkfläche konnte unter Einhaltung der Gestaltungsvorgaben und der Reduzierung von unterirdischen Gebäudeteilen vergrößert werden.

ANSICHT Süd web
ANSICHT Nord web
ANSICHT Ost web
RENDER Außen web

Entlang der südlichen Mauer schlagen wir vor, eine Passage zu platzieren, die den Hauptplatz mit dem westlichen Teil des Areals verbindet. Auch dieser Raum – ein zusätzlicher Platz – spielt in unserem Verständnis durch die Integration des Kunstzentrums CSW Thorn und des ECFC eine wichtige städtebauliche Rolle und ermöglicht die Öffnung eines Teils des Marktes und die Gestaltung von Messen.

SCHNITT Ost West 01 web

Das Kommunikationsservice der Einrichtung wurde nach den Wettbewerbsvorgaben gestaltet - Haupteingänge von der Ostseite (vom Hauptplatz) und der Eingang zum Kinohaus von Norden, zusätzlicher Eingang zum Bildungs- und Marktteil vom Süden und Westen. Anlieferungen können vom Westen und Süden erfolgen.

SCHNITT Nord Süd web
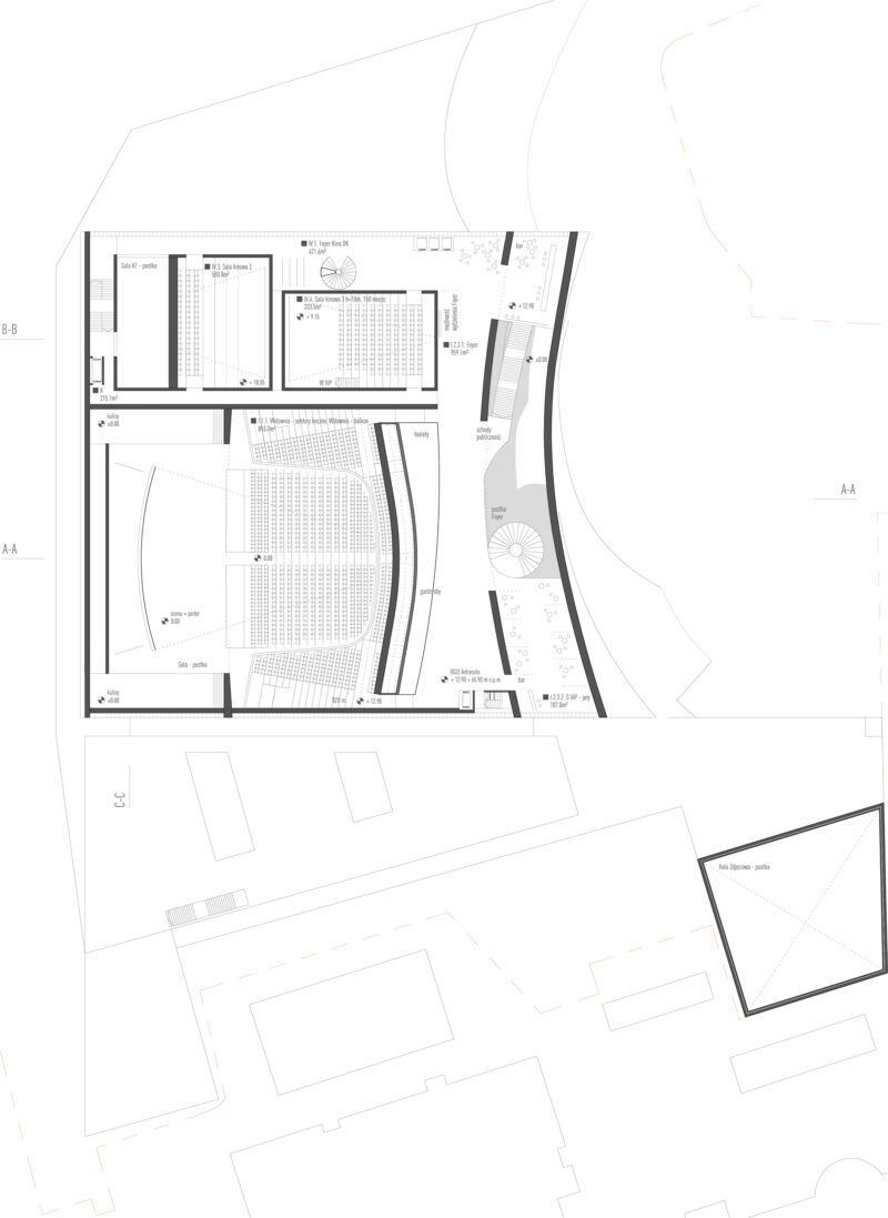
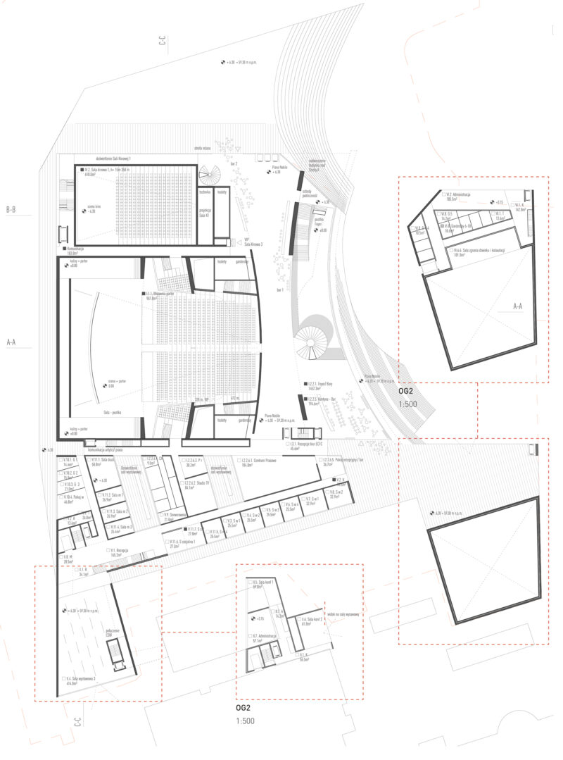
1 OG 1 500 web
2 OG 1 500 web
3 OG 1 500 web

Architektur

Pichler & Traupmann Architekten

Entwurfsteam

Bartosz Lewandowski (Teamleitung)
Anna Gulinska
Florian Huber
Piotr Pindor
Emirhan Veyseloglu

Bauherr

Europejskie Centrum Filmowe CAMERIMAGE

Eckdaten

Planungsbeginn: 2021
BGF: 29.669 m²
Nutzung: Filmzentrum
Leistungsumfang: EU-weit offener, zweistufiger Wettbewerb

Renderings

Patricia Bagienski, Wien