Kultur Kongress Zentrum

Kultur Kongress Zentrum 09

Das gegenständliche Projekt wird in einer nach außen hin erscheinenden Einheit konzipiert, indem sich eine perforierte Hülle um große Teile des Zubaus und um den Bestand spannt.

Jahr

2009

Ort

Eisenstadt

Status

Fertiggestellt

Kategorie

Kultur

Size

10.933 m²

Jahr

Ort

Status

Kategorie

Größe

2009

Eisenstadt

Fertiggestellt

Kultur

10.933 m²

Jahr

2009

Ort

Eisenstadt

Status

Fertiggestellt

Kategorie

Kultur

Size

10.933 m²

Sosehr dieser Entwurfsansatz die Kompaktheit des Gebäudekomplexes artikuliert, werden andererseits auch deutliche Bezugnahmen auf den städtebaulichen Kontext ausgespielt. Der größere Anteil des Volumens konzentriert sich in direktem Anschluss an den Bestand und stuft sich dann zur kleinteiligen Struktur südöstlich des Planungsgebietes ab. Die Höhenstaffelung verschafft diesem Teil der Stadt genügend Licht und Luft, während sich die Masse eher der großmaßstäblichen Osterwiese entgegenneigt.

Kultur Kongress Zentrum Skizze 01

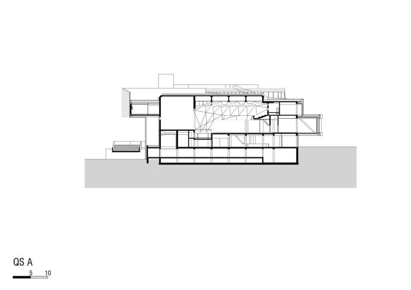
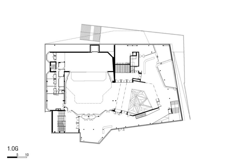
Der Ausstellungsbereich ist auf der tiefer liegende Ebene -3.00 konzipiert und ragt mit seinem Luftraum so in das Foyer hinein. Dieser wichtige Teil des Ensembles wird damit auf der öffentlichen Ebene erfahrbar, sowohl vom Innenraum her, als auch vom Außenraum, zumal auch der Besucher von der Osterwiese kommend bereits über eine Glasfront Einblick in diesen Teil des Gebäudes erhält.

Kultur Kongress Zentrum 05

Eine auditoriumsartige großzügige Stufenlandschaft führt den Besucher in einer einladenden Geste in den Ausstellungsbereich, der in die beiden Hauptzonen gegliedert ist: permanente Ausstellung und Wechselausstellung. Beide Bereiche können voneinander getrennt werden, sowohl funktional, als auch raumklimatisch, um den jeweiligen Beanspruchungen zu dienen.

Kultur Kongress Zentrum 21

Vom Foyer aus wird der Veranstaltungsbesucher über mehrere Zugangstreppen in das Obergeschoß geführt. Die Entflechtung der Erschließung bewirkt eine gute Verteilung des Publikums, um eine effiziente Erreichbarkeit des Veranstaltungsbereiches zu gewährleisten, gleichsam wird um die Säle herum das Publikum verteilt in die jeweiligen Bereiche „gespült“.

Kultur Kongress Zentrum 24
Kultur Kongress Zentrum 35

Die gesamte Ausstellungszone kann über eine Glasschiebewand von den anderen Raumteilen abgegrenzt werden und ist auch raumklimatisch gesondert angesteuert. Der Ausstellungsbereich ist beidseits von Lagerräumlichkeiten umgeben, zum Ostergassl hin ist die Verwaltung der Landesgalerie angelegt. Die Anlieferung der Landesgalerie erfolgt über einen abschließbaren und überdachten Anlieferungshof vom Ostergassl her.

Ein Teil des Erschließungssystems ist auch das bestehende große Stiegenhaus, sowie zwei neu eingeführte Treppen und ein Lift. Von einem winkelförmig angelegten Foyer aus erreicht man die jeweiligen Säle aus verschiedenen Positionen. Der große Saal bleibt in seiner Figur bestehen, der Durchbruch zum kleinen Saal erfolgt an der südseitigen Wand über die gesamte Breite des kleinen Saals.

Kultur Kongress Zentrum 01

Der kleine Saal selbst ist über einer polygonalen Grundfigur angelegt, die leicht ausgedreht eine tiefere Blickwirkung über die Diagonale des großen Saales hinweg erzeugt und damit eine gewisse Ausrichtung zum Bühnenvorbereich des großen Saales intendiert.

Kultur Kongress Zentrum 37

Es ist angedacht, auch die Trennwand zum Foyer partiell als mobile Wand auszuführen, womit eine größere Öffnung zum Foyer/Barbereich hin ermöglicht würde und damit einen großen zusammenhängenden Veranstaltungsbereich erzeugt. Der kleine Saal ist mit einem Glasoberlicht versehen und erhält dadurch – insbesondere für Konferenzen – Tageslicht.

Als Außenhaut ist eine perforierte Metallhaut als hinterlüftete Fassade angedacht. Diese Metallhaut zieht sich auch zum Teil über verglaste Flächen hinweg und gewährt dort einen gedämpften Ausblick. Vor allem wickelt sich diese Haut auch über die Bestandsfassadenflächen in einem gewissen Abstand als vorgehängte Screen, generiert dadurch die optische Einheit des Gesamtensembles und damit ein neues und elegantes Erscheinungsbild ohne substantiell in die bestehenden Fassadenteile einzugreifen. Die Bestandsfassaden können dadurch unkompliziert und günstig saniert werden. Die großformatigen Glasflächen sind zum Sonnenschutz mit Lamellensystemen versehen – die Bürofassaden zur Südseite gegen die steile Sonne mit Horizontallamellen, die Ost- und die Westfassade mit Vertikallamellen gegen das flach einfallende Sonnenlicht.

Kultur Kongress Zentrum 34
Kultur Kongress Zentrum 40
Kultur Kongress Zentrum 39
Kultur Kongress Zentrum 41
Kultur Kongress Zentrum 42

Die beiden Geschoße über der Saalebene beinhalten die Verwaltungsbereiche mit ihren funktionalen Raumgruppen. Auch der Bereich des Landeshauptmannes ist in diesen Verband integriert, nimmt aber trotzdem in seiner Positionierung eine Sonderstellung ein. Die Situierung an der markanten Höhenkante am Schubertplatz gewährt einen Rundumblick in die Umgebung. In der inneren Organisation ist ein Foyer mit den angrenzenden Besprechungsbereichen zu den anderen Einheiten hin zwischengeschaltet. Die Erreichbarkeit des Landeshauptmannbüros von der Tiefgarage aus erfolgt über den unmittelbar anschließenden Lift.

Sowohl der Zubau, als auch die Umbaumaßnahmen erfolgen in Stahlbetonbauweise gemäß statischem Konzept. Als Außenhaut ist eine perforierte Metallhaut als hinterlüftete Fassade angedacht. Diese Metallhaut zieht sich auch zum Teil über verglaste Flächen hinweg und gewährt dort einen gedämpften Ausblick. Vor allem wickelt sich diese Haut auch über die Bestandsfassadenflächen in einem gewissen Abstand als vorgehängte Screen, generiert dadurch die optische Einheit des Gesamtensembles und damit ein neues und elegantes Erscheinungsbild ohne substantiell in die bestehenden Fassadenteile einzugreifen.

Kultur Kongress Zentrum 02
Kultur Kongress Zentrum 15
Kultur Kongress Zentrum 14
Kultur Kongress Zentrum 13

Architektur

Pichler & Traupmann Architekten

Entwurfsteam

Christoph Degendorfer
Mario Gasser
Samuel Kegele
Milan Suchánek

Projektteam

Barbara Aull (Projektleiterin)
Neda Afazel
Fabio Miguel Cunha
Relana Hense
Samuel Kegele
Rasa Navasaityte
Sandy Panek
Isabella Penthor
Jürgen Schneeberger
Andreas Schuchnigg
Wolfgang Windt
Thomas Wolf

Bauherr

BELIG Beteiligungs- und Liegenschafts-Gmbh, Eisenstadt

Statik

DI Harald Weiß, Pregarten

Haustechnik

DIE HAUSTECHNIKER Technisches Büro GmbH, Jennersdorf

Kostenermittlung

DI Markus Weiner, Gattendorf

Bauphysik

DI Walter Prause, Wien

Brandschutz

Norbert Rabl Ziviltechniker GmbH, Graz

Vermessung

DI Helmut Jobst und DI Markus Jobst Ges.b.R., Eisenstadt

Geotechnik

3P Geotechnik ZT GmbH, Wien

Wasserbau

IBW Ingenieurbüro Walcher GmbH, Eisenstadt

Verkehrstechnik

Ingenieurbüro DI Christian Grubits, Eisenstadt

Gastronomie

Küchensystem Vertriebsgesellschaft mbH, Wien

Ausschreibung

Architekt Mag. Johann Schandl ZT-GmbH, Eisenstadt

Generalunternehmer

ALPINE Bau GmbH, Zweigniederlassung Burgenland

Lichtkonzept

Vedder Lichtmanagement, München

Fassadentechnologie

MDE Metal Design Engineering GmbH, Vöklabruck

Örtliche Bauaufsicht

Woschitz Engineering ZT-GmbH, Eisenstadt u. Vasko + Partner Ingenieure, Wien

Eckdaten

Planungsbeginn: 2009
Baubeginn: 2010
Fertigstellung: 2012
Nutzfläche: 9.534,41 m²
Bebaute Fläche: 2.992,35 m²
Ort: Eisenstadt, AT
Nutzung: Kultur- und Kongresszentrum
Leistungsumfang: Generalplaner

Fotos

Roland Halbe, Stuttgart

Auszeichnungen

2013 Nominierung zum Bauherrenpreis 2013
2014 Aluminium-Architektur-Preis 2014