Neues Luzerner Theater

Rendering web

Mit dem Bau des Neuen Luzerner Theaters wird eine wesentliche städtebauliche Schnittstelle im Herzen Luzerns neu geordnet.

Jahr

2022

Ort

Luzern

Status

Wettbewerb

Kategorie

Kultur

Size

11.711 m²

Jahr

Ort

Status

Kategorie

Größe

2022

Luzern

Wettbewerb

Kultur

11.711 m²

Jahr

2022

Ort

Luzern

Status

Wettbewerb

Kategorie

Kultur

Size

11.711 m²

Unser Vorschlag reagiert auf die vielfältigen Beziehungen, Richtungen und Schnittlinien an dieser aussergewöhnlichen urbanen Situation auf vielschichtige und räumlich differenzierte Weise. Der Ort erzeugt quasi die Syntax für das tektonische Gebilde des neuen Theaterbaus.

Der Theaterplatz soll an das Quai verlegt beziehungsweise ein solcher soll ausgewiesen geschafft werden. Als Referenz an die Proportion des alten Theaters wird hier der Haupteingang gesetzt und das historische Theaterquai wieder reaktiviert, genau in der Achse des Rathausstegs, die sich wiederum genau hier mit der Achse des Kapellstegs trifft.

Situationsplan web
Fassade nord

Die aus der Fussgängerperspektive von den jeweiligen Strassenräumen wahrnehmbare Gebäudehöhe soll möglichst niedrig gehalten werden. Deswegen weichen die für das Theater notwendigen, höheren Volumina an drei Seiten der umlaufenden Traufkante entweder zurück oder sind mehrfach zurückgestaffelt. Die orthogonale Beziehung der Häuserblöcke zum Quai der Reuss wird exakt am Bauplatz des Theaters aufgelöst. Hirschengraben und Kapellbrücke laufen diagonal auf ihn zu, letztere weist zudem beim Wasserturm den charakteristischen Knick in der Richtung auf.

Diagramm
Diagramm2
Diagramm3
Diagramm4

Der Bühnenturm soll nicht als Solitär, sondern mittels eines kontinuierlich zum Volumen des Studios abfallenden Daches eingebunden erscheinen.

Rendering web

Die perspektivischen Wirkungen der nicht-parallelen Linienführungen sowie die Entscheidung, den Bühnenturm nicht als Solitär, sondern mittels eines kontinuierlich zum Volumen des Studios abfallenden Daches eingebunden erscheinen zu lassen, sind durchaus verblüffend. Einerseits wird die aufgrund der notwendigen Höhe des Bühnenturms aufragende Silhouette nochmals beruhigt und andererseits werden für den Betrachter, die Betrachterin, ungeahnte Dynamiken des Ortes selbst freigelegt.

Die Tektonik des Hauses wird als jene einer kontinuierlichen Faltung von Flächen verstanden, wobei Öffnungen dort vorhanden sind, wo sie beim Prozess der Faltung entstehen. Diese Öffnungen sind grosszügig verglast. Die Erdgeschosszone ist zum Quai hin möglichst grossformatig und möglichst transparent verglast. Die „Beletage“, das dreigeschossige Hauptfoyer, ist hingegen in Anlehnung an das Motiv

des Theatervorhangs und zugleich in Bezug auf die vorbeifliessende Reuss wellenförmig verglast. Richtung Jesuitenkirche verdichtet sich diese Haut zu einer opaken, hängenden, aber ebenfalls wellenförmig ausgebildeten Scheibe. Der zurückgestaffelte Dachaufbau und Bühnenturm ist mit Glaselementen ausgestattet, deren Rahmen die Vertikalität betonen.

GR EG web
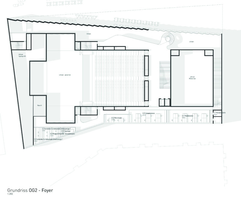
GR OG2 foyer
GR OG3 balkon
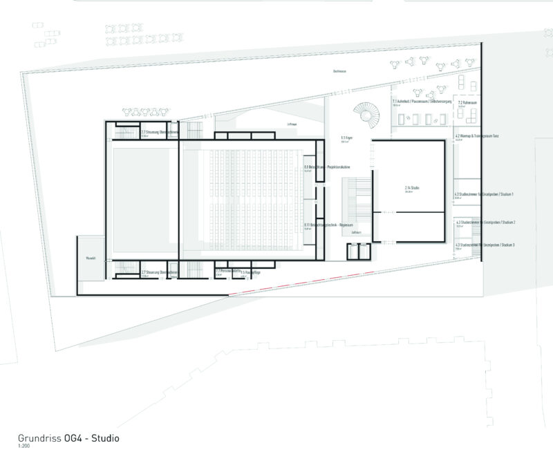
GR OG4 studio

Die Aufführungsräume sind im Wesentlichen in zwei Volumsclustern zusammengebunden: dem „grossen Kreuz“ im Westen, bestehend aus der Hauptbühne mit dem Bühnenturm, den Seitenbühnen, der Hinterbühne und dem Grossen Saal, sowie dem „gestapelten Turm“ im Osten, bestehend aus dem Mittleren Saal und dem Studio.

Das Neue Luzerner Theater – mit einer Syntax der Organisation für ein abgestimmtes Zusammenwirken der verschiedenen Funktionen, und mit einer Syntax der Geometrie, generiert aus den Implikationen des Ortes.

Architektur

Pichler & Traupmann Architekten

Projektteam

Bartosz Lewandowski (Teamleiter)
Anna Chakhal-Salakhova
Anna Gulinska

Bauherr

Projektierungsgesellschaft Neues Luzerner Theater, Luzern

Eckdaten

Planungsbeginn: 2021
Nutzfläche: 7.430 m²
BGF: 11.711 m²
Ort: Luzern, CH
Nutzung: Theater
Leistungsumfang: Offener Projektwettbewerb in zwei Stufen

Rendering

Patricia Bagienski-Grandits, Wien

Modell

Harald Schmidt, Wien