HT - GU Bau

Paul ott ht 092 web
Paul ott ht 053 web

In unmittelbarer Nähe zum bestehenden Standort der hT-Bau Firmenzentrale wird die neue Bürozentrale inklusive angeschlossenem teilüberdachtem Lagerplatz errichtet.

Jahr

2019

Ort

Kalsdorf bei Graz

Status

Fertiggestellt

Kategorie

Arbeiten

Size

3.935

Jahr

Ort

Status

Kategorie

Größe

2019

Kalsdorf bei Graz

Fertiggestellt

Arbeiten

3.935

Jahr

2019

Ort

Kalsdorf bei Graz

Status

Fertiggestellt

Kategorie

Arbeiten

Size

3.935

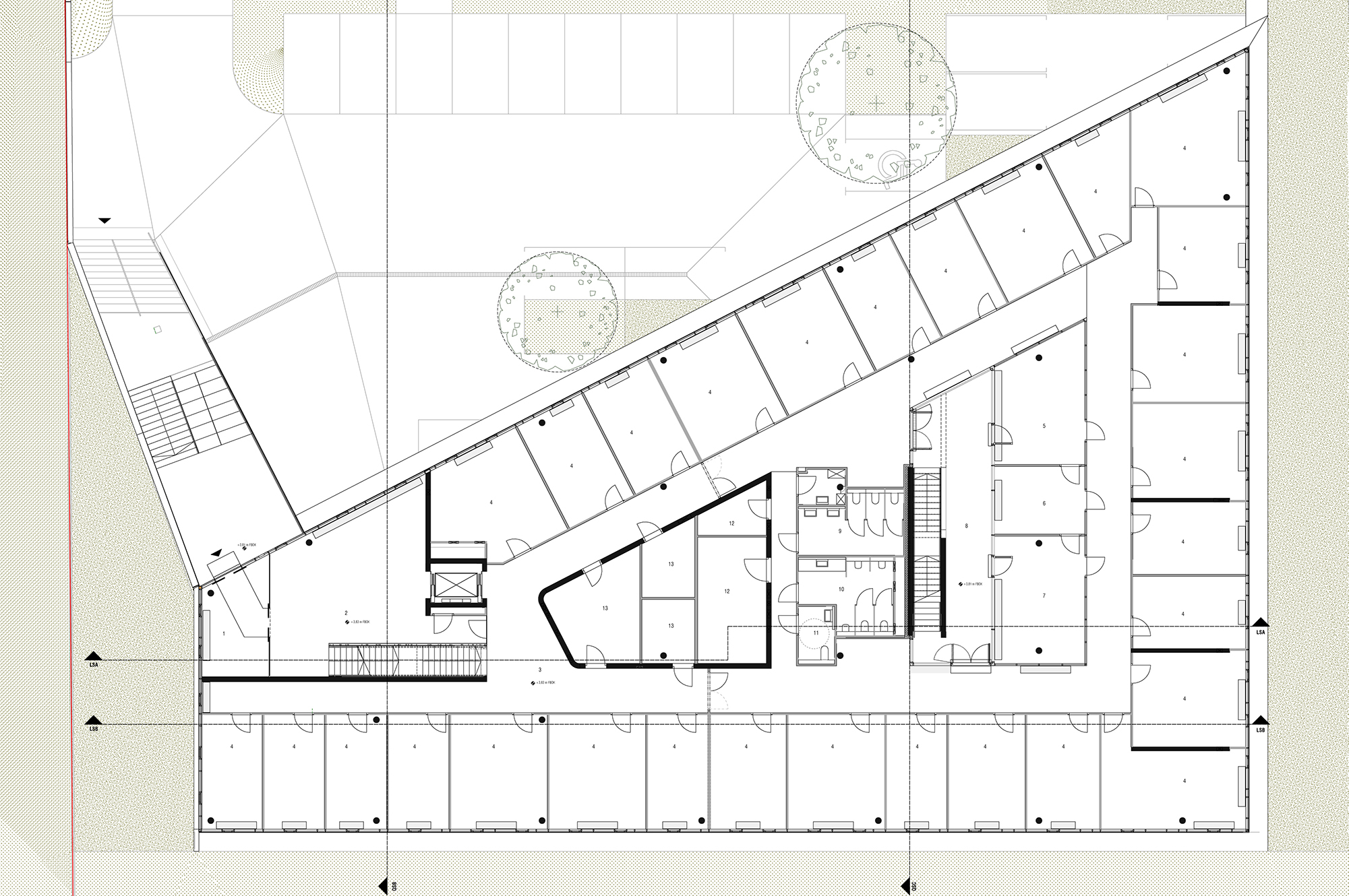
Das Gebäude wird an der West-Seite des Grundstücks angeordnet, und erstreckt sich über drei oberirdische Geschoße, wobei das Erdgeschoß in erster Linie als punktueller Sockel dient, und sämtliche dienliche Räume ab dem 1. Obergschoß angeordnet werden. Im Erdgeschoß, im Bereich unter dem „aufgeständerten“ 1. Obergeschoß werden ebenerdige PKW-Stellplätze geschaffen, sowie Lagerräumlichkeiten angeordnet. Somit kann man unter dem Gebäude hindurchgehen.

Paul ott ht 076 web
Paul ott ht 083 web
Paul ott ht 094 web

Im 1. Obergeschoß werden Büroräumlichkeiten, Teeküchen, Besprechungsbereiche, sowie Sanitärgruppen angeordnet. Das 1. Obergeschoß ist auch von außen, über eine großzügige Freitreppe erreichbar, welche in einen zweigeschoßigen Foyerbereich mündet. Ebenfalls angeordnet im 1. Obergschoß wird ein Atrium, welches auch Zugang zum Fluchtstiegenhaus schafft.

Paul ott ht 031 web

Im 2. Obergeschoß werden ebenfalls Büroräumlichkeiten, Teeküchen, Besprechungsbereiche, sowie Sanitärgruppen angeordnet. Darüber hinaus wird im 2. OG eine großzügige Dachterrrasse ausgeführt, die im Süden des Gebäudes angeordnet wird. Von dieser führt ebenfalls ein Fluchtstiegenhaus nach unten ins Freie.

Paul ott ht 036 web
Paul ott ht 059 web
Paul ott ht 056 web
Paul ott ht 060 web

Über das Bürogebäude sowie den Lagerplatz spannt sich ein gemeinsames Dach, das sich wie ein Kontinuum vom Boden im Lagerbereich bis hin zum 2. Obergeschoß über das Gebäude legt.

Die Fassaden des Gebäudes gliedern sich wie folgt. Im Grunde werden an allen vier Seiten des Gebäudes großzügige, raumhohe Pfosten-Riegel Glas Fassaden angeordnet, welche dem Gebäude eine hohe Leichtigkeit verleihen. Nur an bestimmten, bewusst gesetzten Positionen werden Wandscheiben als Außenfassade definiert,

Paul ott ht 069 web

die Teil einer, über das ganze Gebäude gespannten massiven Außenhülle sind. Diese Hülle wird als hinterlüftete Fassade ausgeführt, und mit Aluminiumplatten verkleidet. Das verbindende Dach über Gebäude und Lagerplatz wird als intensives, bzw. in Teilen als extensives Gründach ausgeführt.

Paul ott ht 001 web
LANGSCHNITT web
WEST ANSICHT web
Paul ott ht 090 web

Architektur

Pichler & Traupmann Architekten

Entwurfsteam

Bartosz Lewandowski (Teamleiter)
Peter Grandits
Andreas Schermann

Ausführungsteam

Klemens Gabriel (Projektleiter)
David Guisado
Barbara Jarmaczki
Joachim Kess
Tibor Koczian
Julian Straub
Severin Türk
Wolfgang Windt
Josef Zapletal

Bauherr

HT-GU & Industriebau GmbH

Eckdaten

Planungsbeginn: 2019
Fertigstellung: 2021
Grundstücksfläche: 6.546 m²
Bebaute Fläche: 2.276 m²
Nutzfläche: 2.875 m²
BGF: 3.935 m²
Nutzung: Bürogebäude, Lagerplatz
Leistungsumfang: Architekturplanun

Renderings

pxt

Ähnliche Projekte

Wien Kanal Zentrale

Neue Mitte Hagenberg