Schulcampus Güssing

Paul ott SC Gssng 001 web cut
Wettbewerb Volksschule Güssing Poster Seite 1 240304 Diagramme1 web

Licht – Luft – Sonne … und … Burg Güssing sind quasi die Ausgangsparameter für die Entwicklung des Schulcampus VS+ASO+ZMS im Zentrum der ausgedehnten Schulbau- und Sportanlagen entlang der Schulstraße.

Jahr

2021

Ort

Güssing

Status

Fertiggestellt

Kategorie

Bildung

Size

4.537 m²

Jahr

Ort

Status

Kategorie

Größe

2021

Güssing

Fertiggestellt

Bildung

4.537 m²

Jahr

2021

Ort

Güssing

Status

Fertiggestellt

Kategorie

Bildung

Size

4.537 m²

Städtebaulich und architektonisch verlangt das „sportlich“ zugeschnittene Grundstück nach einer rationalen Organisation des Gebäudes, um das geforderte Raumprogramm, als auch die erwarteten Qualitäten umsetzen zu können. Zunächst gilt es, genug Freiraum zu belassen, um die Bewegung für die Schüler sicherzustellen. Das Projekt wurde – dem schlanken Zuschnitt des Grundstücks geschuldet – als sich längs erstreckender, gestufter Baukörper in dreigeschossiger Bauweise angelegt.
Mehrere Vorteile werden daraus generiert:
- Ein guter Abstand zur NMS wird damit erzielt
- Über die gesamte Länge des Areals werden nach Süden ausgerichtete besonnte Freiräume geschaffen – seien es die „Vorgärten“ der einzelnen ASO-Klassen oder auch der Schulhof.

Wettbewerb Volksschule Güssing Poster Seite 1 240304 Diagramme2 web02

- Die Stufung der Funktionsebenen erzeugt großzügige Terrassen vor den Hauptunterrichtsräumen als möglichen Auslauf in den Pausen, aber auch als mögliche Freiklassen. Dies trifft auf alle drei Ebenen zu.
- Mit den großzügigen Öffnungen entlang der gesamten Südfassade erhält das Gebäude eine klare Orientierung - mit der Burg als Bezugspunkt - zum Zentrum der Stadt.
- Die Hauptunterrichtsräume sind nach Süden zur ruhigen Erschließungsstraße der Tennisplätze orientiert und nicht zur doch eher verkehrsmäßig „lauten“ Schulstraße hin.
- Alle Hauptunterrichtsträume erhalten dieselben Lichtkonditionen, eine besonnte Ostseite versus eine dunkle Westseite für den Vormittagsbetrieb wird vermieden.

Wettbewerb Volksschule Güssing Poster Seite 1 240304 Diagramme2 web03

LICHT – LUFT – SONNE – die BURG … und Grün vor den Fenstern … eine neue Identität für den Schulcampus VS+ASO+ZMS Güssing!

Paul ott SC Gssng 003 web

Die Schmalseite des Objektes zur Schulstraße hin mit Ihrem Vorplatz definiert eine eindeutige Zugangssituation: hier sind witterungsgeschützte Zonen für das Warten und das Abstellen von Fahrrädern vorgesehen. Dies ist auch als Schwellenraum zu den Parkplätzen hin zu betrachten.
Die architektonische Ausgestaltung dieses Gebäudekopfes erzeugt eine klare Adressbildung für das Objekt und wirkt mit dem ausladenden Vordach einladend als Ganzes.

Pxt Campus Guessing Lageplan1 250
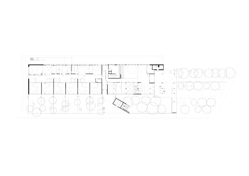
Pxt Campus Guessing E00 Grund Plan 1 200 01

Der schulbezogene Freiraum stellt sich als sorgfältig gegliederter und organisierter Bereich dar, der alle relevanten Funktionen aufnimmt und ordnet. In Verlängerung des Haupteingangs wird eine längliche Platzfläche angeboten, die eine klare Sichtbeziehung für Ankommende herstellt und mit Sitzbänken einen Vor-, Warte- und Abholbereich bildet. Daran angrenzend und durch eine lange Sitzbank getrennt befindet sich der Parkplatz. Mit Rasensteinen begrünt werden die Parkplätze durchgehend mit einer Überbreite von ca. 3m dimensioniert, um Baumpflanzungen und behindertengerechte Stellplätze flexibel unterbringen zu können. Für eine ausgewogene Gewichtung von Eingangsbereich und Parkfläche wird vorgeschlagen die südlichste Parkreihe über den daran angrenzenden südlichen Straßenbereich zu erschließen. Ausreichend Fahrradbügel werden überdacht in Eingangsnähe positioniert.

Der Pausenhof nimmt die klare Formensprache des Eingangsbereichs auf. Der Sonderschule vorgelagert werden den jeweiligen Klassenräumen zugeordnete durch üppige Begrünungen getrennte Freibereiche angeboten. Ein gesonderter Zugang für diesen Schultypus öffnet sich nach Süden und erlaubt ein sicheres Ankommen. Der Schulhof der Volksschule erstreckt sich über drei Geschosse. Im Erdgeschoss wird der gestalterische Duktus der Sonderschule fortgesetzt. Eine Treppenanlage, begleitet von einer Gebäudebegrünung, die auch als Sichtschutz zur Sonderschule dient, führt in das erste Obergeschoss. Trogbepflanzungen mit Ziergräsern und Stauden gliedern die Terrassenfläche und setzen die Grüngestaltung fort. Im zweiten Obergeschoss wird zusätzlich eine größere Beetfläche als didaktisch nutzbarer Gartenbereich angeboten.

Trotz der Längsorganisation des Objektes ist eine gute Zonierung der Bereiche geschaffen: es sind quasi die jeweils für sich stehenden Einheiten klar nachvollziehbar und funktionieren gewissermaßen autonom, bilden dennoch ein kompaktes Gefüge.

Paul ott SC Gssng 023 web

Das zweite OG wird ausschließlich durch zwei gleichwertige Klassencluster mit den Lern- und Freiraumzonen bespielt. Auch hier sind - zum Teil mit einer Pergola überdeckte - großzügige Terrassenflächen vorgesehen.

Paul ott SC Gssng 024 web
Paul ott SC Gssng 072 web

Die Aula ist der offene Lebens- und Aktionsraum für die unterrichtsbegleitenden Programme: seien es die Tagesbetreuung, aber auch Veranstaltungen.

Paul ott SC Gssng 006 web

Die Freizeiträume sind unmittelbar – wiewohl Abtrennung möglich – in den Aulabereich integriert und bilden quasi zusammen mit den Sitzstufen eine großzügige Bespielungszone für die verschiedensten Aktivitäten. Hier ist auch die Bibliothek als wichtiger Teil des pädagogischen Gesamtkonzeptes integriert und animiert damit zum spielerischen Umgang mit dem Lesen. Die Sitzstufen können ebenso als Auditorium für die in unmittelbarere Nähe liegende ZMS oder umgekehrt als Bühne für performative Ambitionen verwendet werden.
Aus den Sitzstufen heraus entwickelt sich ein großzügiges, offenes Erschließungsstiegenhaus über alle Ebenen. Ein Lift für die barrierefreie Erschließung ist selbstredend darin integriert. Für die Sicherstellung der Fluchtwege sind zusätzliche Stiegenanlagen – ein geschlossenes Stiegenhaus, sowie verschieden Freitreppen angelegt.

Das Objekt wurde grundsätzlich gemäß den Vorgaben des R+F-Programms entwickelt und hat damit seine gut funktionierende Autonomie:
- Die Verlängerung des Vordaches bis zum Eingangsbereich der NMS
- Ein gedeckter Zugang am westlichen Ende des Objektes zu den Sporträumen der NMS und des Aktivparks
- Ein Brückenbauwerk aus dem Obergeschoße unmittelbar neben dem Turnsaal über die Erschließungsstraße hinweg.

Paul ott SC Gssng 029 web
Paul ott SC Gssng 043 web
Paul ott SC Gssng 071 web
Paul ott SC Gssng 077 web

Architektur

Pichler & Traupmann Architekten

Entwurfsteam

Bartosz Lewandowski (Teamleiter)
Leonie Eitzenberger
Elisa Mazagg
Emir Veyseloglu

Projektteam

Adnan Balic (Projektleiter)
Patrik Drechsler
Klemens Gabriel
David Guisado T.
Florian Huber
Barbara Jarmaczki
Joachim Kess
Jure Kozmus
Moritz Kühn
Wolfgang Windt
Arkady Zavialov

Bauherr

Stadtgemeinde Güssing

Landschaftsplanung

Lindle+Bukor – atelier für landschaft, Wien

Statik | Haustechnik

Woschitz Engineering ZT GmbH, Oberwart

Bauphysik

RWT plus ZT GmbH, Wien

Örtliche Bauaufsicht

Ingenieurbüro Puffing, Graz

Örtliche Bauaufsicht HKLS-E

TB Ing. Michael Urschler GmbH, Riedlingsdorf

Eckdaten

Planungsbeginn: 2021
Baubeginn: 2022
Fertigstellung: 2024
Nutzfläche: 2.847 m²
BGF: 4.537 m²
Ort: Güssing
Nutzung: Schulcampus
Leistungsumfang: Generalplanung

Fotos

Paul Ott, Graz

Ähnliche Projekte

Future Art Lab

FH Pinkafeld

Universitätscampus Linz

LFS Güssing

Studienzentrum Montanuniversität

Campus Oberwart

Campus AAU Klagenfurt

MCI Campus