 
                    Mit dem Neubau des Future Art Lab wird die Entwicklung dieses besonderen, für Wien einzigartigen und an anglo-amerikanische Vorbilder erinnernden Campus abgeschlossen.
2014
Wien
Fertiggestellt
                                    Bildung
                            
7.370 m²
| Jahr | Ort | Status | Kategorie | Größe | 
|---|---|---|---|---|
| 2014 | Wien | Fertiggestellt | 
                                                    Bildung | 7.370 m² | 
Jahr
2014
Ort
Wien
Status
Fertiggestellt
Kategorie
                                            Bildung
                                        
Size
7.370 m²
Aufgrund dieser Tatsache und aufgrund seiner Lage an markanter Stelle kommt diesem Haus besondere Bedeutung zu, die es erlaubt, den stimmigen Kanon der Bauten am Campus an dieser Stelle besonders zu akzentuieren.
Nicht adäquat wäre es hingegen, an dieser Stelle Dominanz auszuüben. Eine moderate Höhenentwicklung, eine Einbindung in die volumetrische Entwicklung der Nachbarbauten sowie eine räumliche und funktionale Bezugnahme auf das zentrale, freie Feld, den „Campus“ im wörtlichen Sinn, schien wichtig. Das Gebäude versteht sich daher als Pavillon mit einer zur Mitte der Universität gerichteten Geste der Öffnung, die zudem auf stadträumliche Bezüge zu reagieren vermag.
 
        Entstanden ist somit ein eingebetteter Solitär, der durchaus als Apparat, als Gerät für das Spiel, die Komposition und das Experiment von und mit Film und Musik verstanden werden kann.
 
                         
                        Städtebaulich geht das Projekt in besonderer Form auch auf die landschaftliche Qualität des Außenraumes ein, indem dieser nach oben perspektivisch fortgesetzt, für die Nutzer zusätzliche Aufenthaltsqualitäten auf kurzem Weg ins Freie anbietet. Die Funktionen entfalten sich wie selbstverständlich entlang großzügiger Verkehrsflächen, die gleichzeitig Aufenthalts- und Begegnungsqualitäten anbieten. Gleichzeitig wird durch die Erschließung innerhalb der Geschosse und dreidimensional im Gebäude ausgezeichnete Orientierbarkeit gewährleistet. (Jury)
 
         
                         
                        Da die inneren Lasten (Wärmequellen) sehr hoch sind, ist es von großer Bedeutung, Energieeintrag von außen hintan zu halten. Dies erfolgt durch extensiven Einsatz von Sonnenschutzlamellen, die auch in der architektonischen Durchbildung eine wesentliche, gestaltprägende Rolle spielen.
 
                    
                 
                    
                 
                    
                 
                    
                 
                    
                 
                    
                 
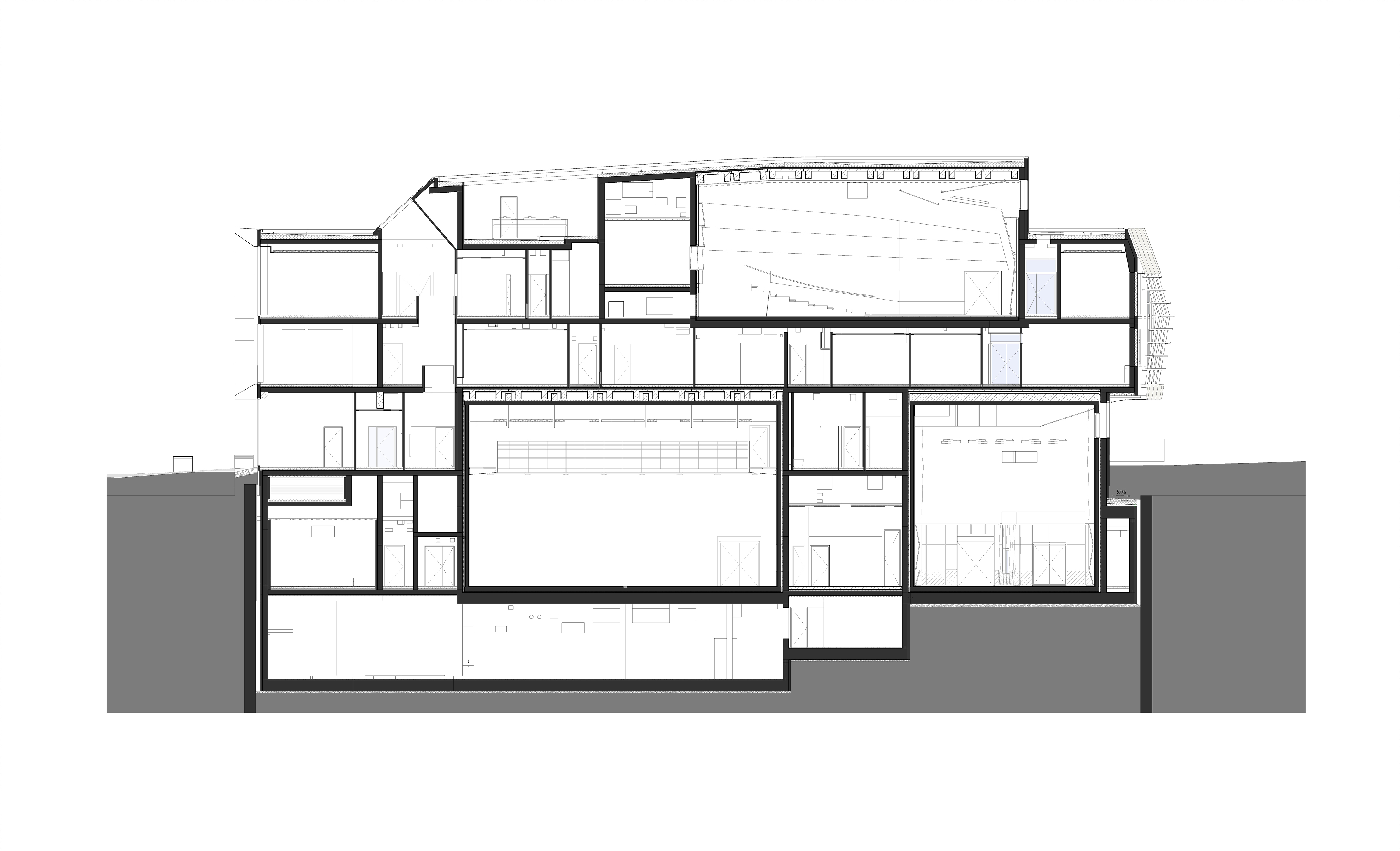
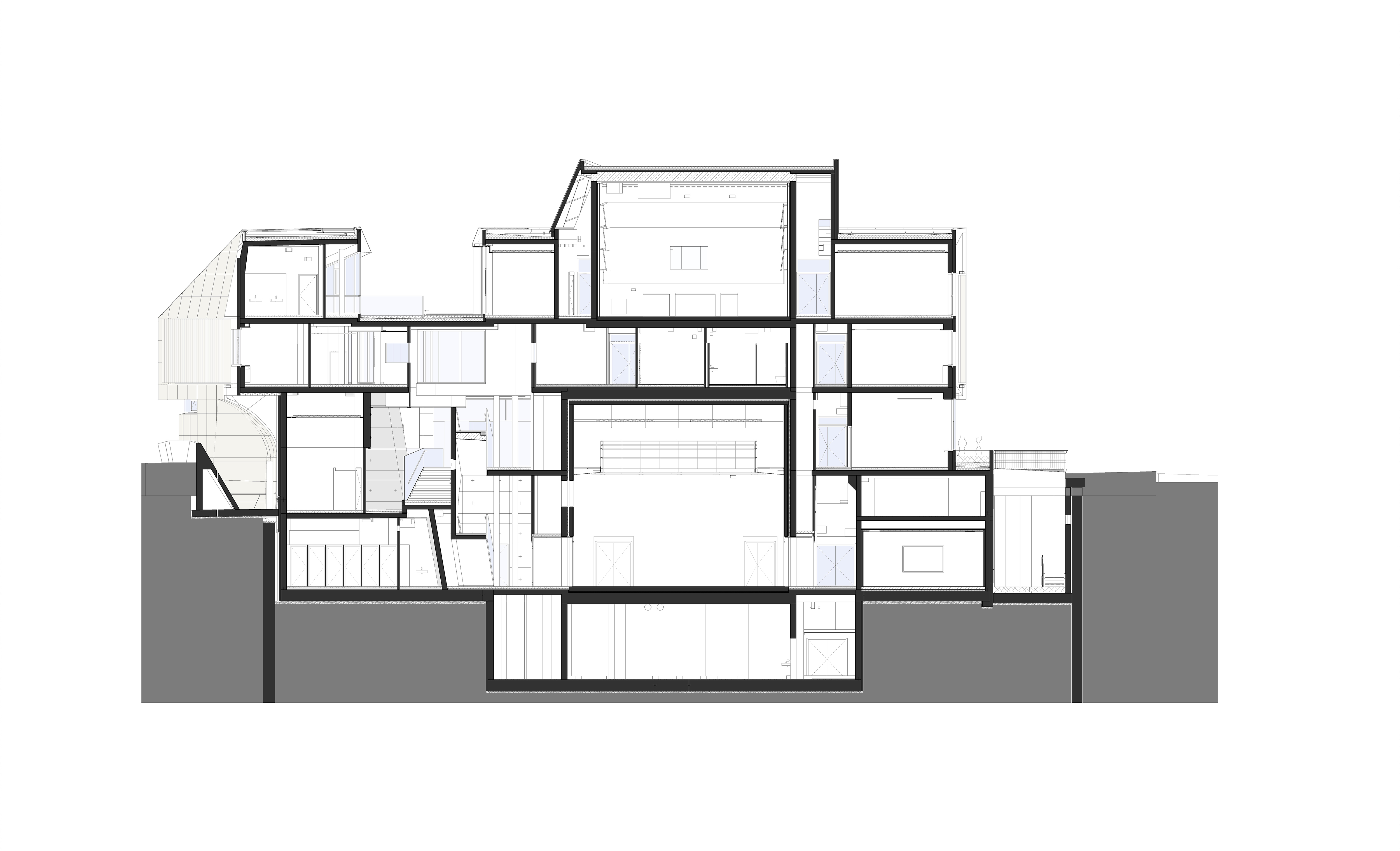
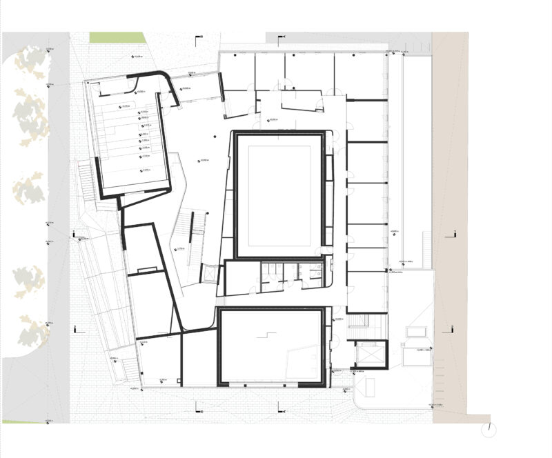
        Im Südosten befindet sich ein zweiläufiges Stiegenhaus mit Lastenlift, der strategisch alle zu beliefernden Bereiche auf kurzem Wege mit der Anlieferung verbindet. Die Haupttreppenanlage ist jedoch eine räumlich durchkomponierte und in Beziehung zu Campus und Stadt gelegte Erschließungs- und Begegnungszone, die sowohl Studierende und Lehrende zu den Instituten, wie auch die interessierte Öffentlichkeit zu den Sälen geleitet. Nimmt man den Weg hinunter, gelangt man, vorbei am Seminarraumbereich der Filmakademie, zum Klangtheater des Instituts für Elektroakustik und Komposition. Nimmt man den Weg hinauf, erreicht man das Zentrum der Hauptebene der Filmakademie. Folgt man der Treppe weiter, hat man das Gebäude bereits diagonal durchmessen und gelangt mit Blick in Freie zum Konzertsaal. Begleitet wird die Haupttreppenanlage von einem gläsernen Personenlift zur barrierefreien Erschließung sämtlicher Niveaus. Trotz der Durchquerung des Gebäudes kann jedes Institut abgeschlossen, die der Öffentlichkeit zugänglichen Säle samt deren Foyerzonen hingegen offen gehalten werden. Beide Stiegenhäuser sind als Fluchttreppen ausgebildet, mit den jeweils erforderlichen Maßnahmen wie Verglasungen, Sprinklerbeaufschlagung, Brandschutzvorhängen oder Druckbelüftung.
 
                    
                 
                    
                 
                    
                 
                    
                 
                         
                         
                Für alle Räume und Säle mit sehr hohen akustischen Anforderungen ist eine lückenlose Raum-in-Raum-Bauweise vorgesehen. Es ist daher die raumbildende Tragstruktur in Stahlbeton vollkommen von der den Innenraum bildenden, ebenfalls massiven Struktur entkoppelt und mittels Masse-Feder-System gelagert. Die drei größten Schallemittenten, Klangtheater, Aufnahmeraum und Art House Kino sind unabhängig voneinander im Untergeschoß gelagert, sodass von diesen kein Körperschall auf andere Bauteile ausgehen kann. Die Lasten des Konzertsaals, der selbstverständlich ebenfalls in Raum-in-Raum-Bauweise und Masse-Feder-System vorgesehen ist, werden mit einer getrennten Tragstruktur durch das Gebäude hindurch in die Fundamente abgeleitet, sodass auch hier keine Beeinträchtigungen gegeben sind. Ergänzend ist das gesamte Institut für Tasteninstrumente auf einer eigenen, schwimmenden Stahlbetonplatte, unabhängig von der primären Stahlbetondecke, aufgesetzt.
Alle Räume mit hohen akustischen Anforderungen sind durch entsprechend starke Wände in Massivbauweise voneinander getrennt.
 
                         
                         
        Die innere Organisation ist einzig und allein den funktionalen und bauakustischen Anforderungen geschuldet sowie dem Bestreben, einem jeden Institut größtmögliche Kompaktheit bei gleichzeitiger maximaler Tageslichtexposition zu gewährleisten. Das Institut für Elektroakustik und Komposition, mit den großvolumigen Sälen, dem Klangtheater und dem Aufnahmesaal, welche seinen Nukleus bilden, ist aus bauakustischen Gründen notwendiger Weise im ersten Untergeschoß angesiedelt, ebenso wie großzügige Foyerzonen. Über einen versenkten Hof werden seine Unterrichtsräume aber dennoch gut von Osten natürlich belichtet. Die zugehörigen,
 
                administrativen Räumlichkeiten befinden sich ebenfalls Richtung Osten im Erdgeschoß sowie das Hauptfoyer. Die Filmakademie, flächenmäßig größtes Institut bei größtem Anteil an natürlich zu belichtenden Räumen, nimmt alleine das gesamte 1. Obergeschoß, das aus baurechtlicher Sicht die größte Ausdehnung einnehmen darf, ein. Um noch mehr an Fassadenfläche zur Belichtung zu generieren, wurde ein Raumflügel nach innen geklappt – eine großzügige Terrasse entsteht, als Nebeneffekt. 
 
                Das ART HOUSE KINO ist jedoch bewusst für die Öffentlichkeit direkt vom Erdgeschoß erreichbar. Die untere Ebene des Kinosaals verbindet sich direkt mit einem in den Luftraum des Untergeschoßes eingeschobenen Zwischenniveau, das die Seminarräume beinhaltet. An dieser Stelle ist eine direkte, fußläufige Verbindung zum nebenliegenden Bauteil G möglich.
 
                    
                 
                    
                Zwei wesentliche Konstruktionsprinzipien für die Raumakustik sind berücksichtigt worden: Diffusität und Raumbedämpfung. Die erforderliche Diffusität wird über raumakustisch geeignete Wand- und Deckenverkleidungen, wie z.B. konvexe Elemente hergestellt. Hierdurch werden Schallfokussierungen aufgelöst und die Basis für gutes Hören gelegt. Aufgrund der Nutzung für Forschung und Lehre wird das experimentelle Erleben einer unterschiedlichen Raumakustik über eine variable Raumakustik ermöglicht. Die Raumbedämpfung kann hierzu in weiten Bereichen mit schallabsorbierenden Vorhängen verändert werden.
Der Konzertsaal ist mit massiven Holzelementen, die den Schall ins Publikum reflektieren, an Wänden und Decken ausgestattet. Diese Elemente wirken zudem als eigener „Klangkörper“. Der Boden ist als schwerer Holzboden ausgebildet. Um die Nachhallzeit steuern zu können, sind in einer definierten Zone zwischen Oberkante der Wandelemente und den Deckenelementen akustisch hoch wirksame und bewegbare Stoffelemente bzw. Vorhänge vorgesehen.
 
                         
                        Das Klangtheater ist als experimenteller Raum vollflächig mit schallabsorbierend wirksamen Rollos ausgestattet, die im ausreichenden Abstand vor der Innenschale der Raum-in-Raum-Konstruktion angebracht sind und eine maximal variable Raumakustik sicherstellen. Im Art House Kino sind alle wesentlichen Raumoberflächen für eine absorbierende Auskleidung vorgesehen, so dass eine gute Hörsamkeit bei Lautsprecherbeschallung sichergestellt ist. Zusätzlich ist auch der Fußboden absorbierend mit einer Lochung ausgerüstet, durch die auch die Zuluft geräuscharm quellen kann.
 
        Um den höchsten Ansprüchen an den Schallschutz gerecht zu werden, sind darüber hinaus Pufferbereiche wie z.B. Flure und Zwischenräume umgesetzt worden. So ist der Konzertsaal über einen weniger sensiblen Flurbereich von den darunter liegenden Aufnahmebereichen getrennt, was für den notwendigen Schallschutz zwingend erforderlich ist. Häufig sind Türkonstruktionen akustische Schwachstellen, was hier jedoch nicht der Fall ist, da Platz für Türschleusen vorgesehen ist, um einen sehr hohen Schallschutzstandard umzusetzen.
 
                    
                 
                    
                 
                    
                 
                    
                 
        Pichler & Traupmann Architekten
Bartosz Lewandowski (Teamleiter)
Luca Baumgartner
Peter Grandits
Fabian Lorenz
Alexander Tauber (Projektleiter)
Mohammad Ekhlasi
Christoph Degendorfer
Patrik Drechsler
Klemens Gabriel
David Guisado
Barbara Jarmaczki 
Joachim Kess
Daniel Moral T.
Jan Niklas Schöpf
Marvin Seifner
Milan Suchánek
Bundesimmobiliengesellschaft m.b.H. (BIG), Wien
Fritsch Chiari und Partner ZT GmbH, Wien
Norbert Rabl ZT GmbH, Graz
Gawaplan - Haustechnik Anlagen GmbH, Wien
Müller BBM GmbH, Planegg
Prause iC ZT GmbH, Wien
MDE Metalldesign Engineering GmbH, Vöcklabruck
Kubik Projekt GesmbH, Gießhübl
Planungsbeginn: 2014
Baubeginn: 2017
Fertigstellung: 2020
Grundstücksfläche: 14.602 m²
Nutzfläche: 6.210 m²
Bebaute Fläche: 2.072 m²
BGF: 7.370 m²
Ort: Wien 3
Nutzung: Universitätsgebäude
Leistungsumfang: Generalplanung
Toni Rappersberger, Wien
Hertha Hurnaus, Wien
2025 Österreichischer Betonpreis 2025, Kat. Bildung/Verwaltung
2024 ICONIC AWARD 2024: Innovative Architecture – Winner, Kategorie ARCHITECTURE – Public/Culture/Education
2023 Staatspreis Architektur 2023, Kat. Verwaltung/Forschung 
2022 FIABCI Prix d'Excellence 2022 – WINNER Kat. Spezialimmobilien 
2021 BUILT DESIGN AWARDS 2021 – Honorable Mention (Educational Category) 
2021 ARCHITECTURE MASTERPRIZE – 2021 Architectural Design Award – Best of Best (Educational Buildings Category) 
2021 Bauherrenpreis 2021, Nominierung
2021 The International Architecture Award 2021,The Chicago Athenaeum
2021 GEBAUT [2020], Stadt Wien – Architektur und Stadtgestaltung
2021 Architizer A+Awards 2021 Special Mention in the Architecture +Learning Category