Gesundheits- und Sicherheitszentrum des Samariterbundes

Grafik 22 Perspektive web
Modell 1 web

Effizientes Zusammenwirken der verschiedenen Teilbereiche und Einrichtungen mit einem ambitionierten Personal sind die Grundlagen des Sicherheitszentrums für den Samariterbund. Diesem Anspruch folgend wurden die Gesamtanlage, wie auch die jeweiligen Einheiten von einem praktisch ausgerichteten Zugang her entwickelt.

Jahr

2024

Ort

Wien

Status

Wettbewerb

Kategorie

Mixed

Size

22.540 m²

Jahr

Ort

Status

Kategorie

Größe

2024

Wien

Wettbewerb

Mixed

22.540 m²

Jahr

2024

Ort

Wien

Status

Wettbewerb

Kategorie

Mixed

Size

22.540 m²

Am nördlichen Grundstücksrand entlang ist der Liefer- und Wirtschaftshof mit den nötigen Zusatzeinrichtungen wie Tankstelle, Waschstraße etc. angeordnet. Im Kern ist das Lager als kompakte Einheit verortet, die nicht überbaut ist. Richtung Osten ist das dreieckförmige Kopfgebäude angelegt, das sich mit einem schlanken Flügel entlang der Seestadtstraße vor das Lager schiebt. Die Stabstelle ist ein laternenartiger Aufbau auf der Dachebene des Ensembles. Die „betriebliche“ Zu- und Abfahrt befindet sich an der westlichen Grundgrenze und ist damit entflochten vom MIV. Die Versorgung des Projektes mit Energie erfolgt mittels Geothermie.

Grafik 5 Systematik Baukoerper

Mit dem Konsulenten für Verkehrsplanung wurden die Zu- und Abfahrten konzipiert. Die „betriebliche“ Zu- und Abfahrt befindet sich an der westlichen Grundgrenze und ist damit entflochten vom MIV. Hier fahren sowohl die Transportfahrzeuge, als auch Rettungsfahrzeuge ein und aus. Die Zufahrt zur Garage für PKWs, sowohl für externe Besucher, als auch für Mitarbeiter und Schulungsteilnehmer erfolgt etwas weiter ostwärts in der Nähe des Hauptzugangs.

Verkehrskonzept web
Einsatzfall web
Sonnenschutz web

Wie bereits erwähnt, ist für die Stabstelle als eigene, abgeschlossene Funktion ein laternenartiger Aufbau auf der Dachebene vorgesehen. Von hier aus erreicht man auch den Helikopterlandeplatz auf dem nordöstlichen Bereich des Daches auf derselben Ebene. Das Anheben der Lagerebene und leichtes Absenken des Vorgartens gibt über einen horizontalen Glasschlitz den Einblick auf die RTW frei –

und kommuniziert das Objekt damit als Einsatzzentrale. Die Versorgung des Projektes mit Energie erfolgt mittels Geothermie, d.h. mittels Erdwärmepumpen in Verbindung mit einem Erdsondenfeld (Energiepfähle). Dies gilt zunächst für die Wärmebereitstellung im Winter. Im Sommer dienen die Erdsonden als Wärmesenke für die Raumkühlung, überwiegend im Free-Cooling.

Das Haus ist klima-fit und zeigt sich als grünes Objekt: die ausgeklappten Fassadenstreifen entlang der Seestadtstraße und entlang des Parks erzeugen Pflanzbeete mit ausreichend Substrat und reduzieren zugleich den Solareintrag in die Innenräume. Eine massiv begrünte Fassade „spricht“ damit zum öffentlichen Raum. Die opaken Fassadenteile werden mit Fassadenplatten aus Recycling-Steinwolle bekleidet. Sie sind im Sinne des Albedo-Effekts in hellem Farbton ausgeführt und werden von dicht bepflanzten Pflanztrögen begleitet.

Lageplan web

Das Gesundheits- und Sicherheitszentrum wird auf einer bestehenden Grünfläche errichtet. Vorbild im Sinne einer Biotopgestaltung sind die nahen Auwälder der Donau. Es soll ein Klimaakku entstehen, der Artenschutz und Klimaresilienz zu einer sichtbaren Qualität des Bauvorhabens macht.

EG web
Grafik 15 OG1 web
Grafik 18 OG3 web
Grafik 20 OG4 web

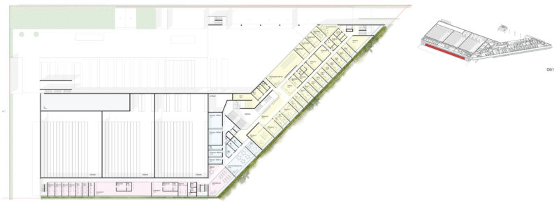
Der Hauptzugang erfolgt von der Seestadtstraße her. Hier gelangt man in ein Foyer, an das der Essensbereich angrenzt und damit gegebenenfalls auch von extern her erreicht werden kann. Dem Essbereich ist eine Freiterrasse vorgelagert. Sollte ein nur interner Zugang zum Essbereich gewünscht werden, wäre dieser an das andere Stiegenhaus im nordöstlichen Teil des Traktes einfach zu verschieben. Vom Foyer aus gelangt man über eine großzügige Treppe direkt ins erste Obergeschoß, wo das arbeitsmedizinische Zentrum verortet ist. Im ersten OG befinden sich entlang der Straßenfront auch die notwendigen Räume für den Rettungsdienst. Dieser Trakt ist mittels zwei Stiegenhäusern direkt mit

der Garage der RTW verbunden. Im zweiten Obergeschoß sind im dreieckförmigen Kopfbau alle Seminar- und Schulungsräume sowie die Verwaltung untergebracht. Das Schulungszentrum zieht sich noch in das 3. Obergeschoß. Am südlichen Ende des Parkflügels ist eine Besprechungseinheit der Stabstelle angeordnet, die im Krisenfall abtrennbar ist, im üblichen Fall jedoch als Backup für den Schulungsbetreib dienen kann. Im 3. OG finden wir ebenfalls die Aufenthalts- und Ruheräume für den KHD-Bereich. Die Stabstelle auf dem Dach als laternenartiger Aufbau ist metaphorisch wie ein Blaulicht auf dem Dach der Fahrzeuge zu lesen und transportiert ebenfalls die Botschaft eines Einsatzfalles.

Schnitt 1 1
Schnitt 2 2

Architektur

Pichler & Traupmann Architekten

Entwurfsteam

Bartosz Lewandowski (Teamleiter)
Anna Chakhal Salakhova
Anna Gulinska
Rafal Szczyglowski

Bauherr

Arbeiter Samariter-Bund Österreich, Wien

Statik und Brandschutz

Norbert Rabl ZT GmbH, Graz

Haustechnik

GAWAPLAN Haustechnische Anlagen Ges.m.b.H., Wien

Verkehrsplanung

TRAFFIX Verkehrsplanung GmbH, Wien

Landschaftsplanung

Lindle+Bukor - atelier für landschaft, Wien

Eckdaten

Planungsbeginn: 2024
Nutzfläche: 21.371 m²
BGF: 22.540 m²
Ort: Wien Seestadt
Nutzung: Rettungsstützpunkt, Sicherheitskompetenzzentrum, Logistikzentrum, Lagerhalle, Ausbildungszentrum, Großküche, Fuhrpark
Leistungsumfang: Geladener Wettbewerb

Renderings

Patricia Bagienski-Grandits, Wien

Modell

Harald Schmidt, Wien

Auszeichnung

2. Platz

Ähnliche Projekte

ÖAMTC Zentrale

HT - GU Bau

RLB Landesbank Kärnten